Резервуары ООО "ТАИФ-НК АЗС", г. Казань (Страница 2)
ООО "ТАИФ-НК АЗС", г. Казань

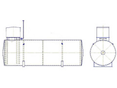
Резервуары ООО "ТАИФ-НК АЗС", г. Казань

97689-26
РГС Резервуары стальные горизонтальные цилиндрические
ООО «ТАИФ-НК АЗС», РОССИЯ, 420097, Республика Татарстан (Татарстан), г.о. город Казань, г. Казань, ул. Зинина, д. 10, офис 507
Резервуары стальные горизонтальные цилиндрические РГС (далее - резервуары) предназначены для измерений объема нефтепродуктов, а также для их приема, хранения и отпуска.
97672-26
РГС-50 Резервуары стальные горизонтальные цилиндрические
ООО «ТАИФ-НК АЗС», РОССИЯ, 420097, Респ. Татарстан (Татарстан), г.о. г. Казань, г. Казань, ул. Зинина, д. 10, офис 507
Резервуары стальные горизонтальные цилиндрические РГС-50 (далее - резервуары) предназначены для измерений объема нефтепродуктов, а также для их приема, хранения и отпуска.
97526-26
РГС Резервуары стальные горизонтальные цилиндрические
ООО «ТАИФ-НК АЗС», РОССИЯ, 420097, Республика Татарстан (Татарстан), г.о. город Казань, г. Казань, ул. Зинина, д. 10, офис 507
Резервуары стальные горизонтальные цилиндрические РГС (далее - резервуары) предназначены для измерений объема нефтепродуктов, а также для их приема, хранения и отпуска.
97525-26
РГС-25 Резервуары стальные горизонтальные цилиндрические
ООО «ТАИФ-НК АЗС», РОССИЯ, 420097, Республика Татарстан (Татарстан), г.о. город Казань, г. Казань, ул. Зинина, д. 10, офис 507
Резервуары стальные горизонтальные цилиндрические РГС-25 (далее - резервуары) предназначены для измерений объема нефтепродуктов, а также для их приема, хранения и отпуска.
97524-26
РГС Резервуары стальные горизонтальные цилиндрические
ООО «ТАИФ-НК АЗС», РОССИЯ, 420097, Республика Татарстан (Татарстан), г.о. город Казань, г. Казань, ул. Зинина, д. 10, офис 507
Резервуары стальные горизонтальные цилиндрические РГС (далее - резервуары) предназначены для измерений объема нефтепродуктов, а также для их приема, хранения и отпуска.
96944-25
РГС-25 Резервуары стальные горизонтальные цилиндрические
ООО «ТАИФ-НК АЗС», РОССИЯ, 420097, Республика Татарстан (Татарстан), г.о. город Казань, г. Казань, ул. Зинина, д. 10, офис 507
Резервуары стальные горизонтальные цилиндрические РГС-25 (далее - резервуары) предназначены для измерений объема нефтепродуктов, а также для их приема, хранения и отпуска.
96558-25
РГС Резервуары стальные горизонтальные цилиндрические
ООО «ТАИФ-НК АЗС», РОССИЯ, 420097, Республика Татарстан (Татарстан), г.о. город Казань, г. Казань, ул. Зинина, д. 10, офис 507
Резервуары стальные горизонтальные цилиндрические РГС (далее - резервуары) предназначены для измерений объема нефтепродуктов, а также для их приема, хранения и отпуска.
96557-25
РГС Резервуары стальные горизонтальные цилиндрические
ООО «ТАИФ-НК АЗС», РОССИЯ, 420097, Республика Татарстан (Татарстан), г.о. город Казань, г. Казань, ул. Зинина, д. 10, офис 507
Резервуары стальные горизонтальные цилиндрические РГС (далее - резервуары) предназначены для измерений объема нефтепродуктов, а также для их приема, хранения и отпуска.
96556-25
РГС Резервуары стальные горизонтальные цилиндрические
ООО «ТАИФ-НК АЗС», РОССИЯ, 420097, Республика Татарстан (Татарстан), г.о. город Казань, г. Казань, ул. Зинина, д. 10, офис 507
Резервуары стальные горизонтальные цилиндрические РГС (далее - резервуары) предназначены для измерений объема нефтепродуктов, а также для их приема, хранения и отпуска.
96555-25
РГС-15 Резервуары стальные горизонтальные цилиндрические
ООО «ТАИФ-НК АЗС», РОССИЯ, 420097, Республика Татарстан (Татарстан), г.о. город Казань, г. Казань, ул. Зинина, д. 10, офис 507
Резервуары стальные горизонтальные цилиндрические РГС-15 (далее - резервуары) предназначены для измерений объема нефтепродуктов, а также для их приема, хранения и отпуска.