Байпасный указатель уровня со смотровым стеклом РИЗУР-НБК-ГЛАСС-П
- Надёжная визуализация уровня жидкости с точным считыванием показаний
- Рабочая температура до +300 °C и давление до 16 МПа
- Возможность выбора гладких или рифленых стекол для разных сред
- Исполнения просветного и непросветного типов под разные задачи
- Возможность комплектации светодиодной подсветкой
- Высокая химическая стойкость благодаря применению нержавеющих сталей
- Простота конструкции, длительный срок службы и лёгкое обслуживание
- Широкий выбор присоединений и вариантов монтажа под нужды заказчика
Указатели уровня РИЗУР-НБК-ГЛАСС-П применяются для непрерывного измерения и отображения уровня жидкости в резервуарах. Уровнемеры в данном варианте исполнения имеют все характеристики, описанные и утвержденные в зарегистрированных национальных стандартах ГОСТ 1663-81 и DIN 7081.
Байпасные указатели уровня РИЗУР-НБК-ГЛАСС-П комплектуются плоскими водоуказательными стеклами. В зависимости от варианта исполнения прибора и измеряемой среды устанавливаются: гладкие (транспарантные) стекла, которые предназначены для отображения жидкости, либо рифленые (рефлексионные) стекла, использующиеся для отображения жидких сред и пара.
Исполнения
Существует несколько вариантов исполнения указателей уровня РИЗУР-НБК-ГЛАСС-П — просветного (РИЗУР-ГЛАСС-П2) и непросветного типа (РИЗУР-ГЛАСС-П1).
РИЗУР-НБК-ГЛАСС-П1 непросветного типа
В корпусе приборов непросветного типа установлено одно стекло на лицевой стенке индикатора уровня. Задняя стенка индикатора уровня — глухая и не просвечивается. Используются либо плоские водоуказательные гладкие стекла (стекла Дюренса), либо плоские водоуказательные рифленые стекла (стекла Клингера).
РИЗУР-НБК-ГЛАСС-П2 просветного типа
В корпусе приборов просветного типа диаметрально противоположно установлены два стекла (на лицевой и на задней стенке индикатора уровня) таким образом, что они просвечиваются насквозь. Используются плоские водоуказательные гладкие стекла (стекла Дюренса).
Для улучшения наблюдения за процессом приборы данного типа возможно комплектовать светодиодными светильниками, устанавливающимися с обратной стороны прибора.
Плоские водоуказательные гладкие стекла (стекла Дюренса) эксплуатируются, в том числе в таком оборудовании, как:
-
паровые котлы, где давление пара достигает 3,5 МПа включительно, температура до 240 °С.
-
паровые котлы, где давление пара от 3,5 до 12 МПа включительно,
-
сосуды с нефтепродуктами, где давление пара не более 16 МПа включительно, температура до 100°С.
При определенных эксплуатационных условиях (давлении более 3,5 МПа) для предохранения от агрессивных воздействий пара и воды на гладкие стекла устанавливаются слюдяные прокладки (по ГОСТ 13752).
Плоские водоуказательные рифленые стекла (стела Клингера) эксплуатируются, в том числе в паровых котлах, где давление пара не превышает 3,5 МПа включительно.
Максимально допустимые рабочие температуры для непрерывной эксплуатации гладких (транспарантных) и рифленых (рефлексионных) стекол до 300 °С.
Данные стекла используются в средах вода-пар. Благодаря продольным рискам на внутренней стороне стекла пар в стекле выглядит светлым, вода — темной. Таким образом, явно видно границу между темной полосой воды и светлой полосой пара над ней.
Существуют различные варианты крепежа плоских стекол к корпусу прибора: с помощью шпилек, гаек или хомута.
Указатели уровня РИЗУР-НБК-ГЛАСС-П могут быть оснащены дополнительными приборами и устройствами сигнализации, измерения уровня, температуры, давления и т.д.
Визуальные уровнемеры РИЗУР-НБК-ГЛАСС-П изготавливаются из следующих марок стали:
-
12х18н10т (AISI 321),
-
10Х17Н13М2 (аналог AISI 316Ti),
-
08х18н10 (аналог AISI 304).
В зависимости от требований заказчика возможны варианты подключения прибора к процессу: фланцевый, резьбовой, под приварку, другие специальные варианты по согласованию с изготовителем.
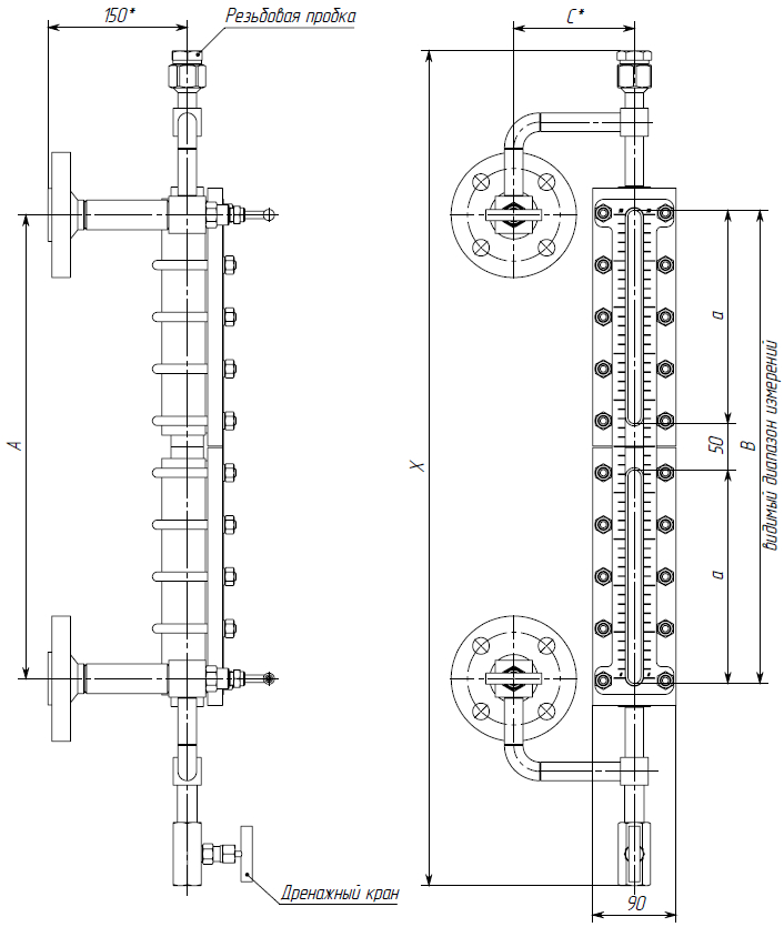
Если расстояние между центрами присоединения равно диапазону измерения, то присоединительный узел выносится в бок.
На сегодняшний день уровень локализации производства РИЗУР-НБК-ГЛАСС-П составляет более 85 %. Все комплектующие и составные части прибора от метизов до фланцев и кранов изготавливается непосредственно в ООО «НПО РИЗУР».
Назначение и область применения
Указатели уровня РИЗУР-НБК-ГЛАСС-П производства ООО "НПО РИЗУР" предназначены для контроля уровня жидкости в открытых, закрытых или находящихся под давлением емкостях, в качестве индикатора наличия (отсутствия) жидкости в контролируемом объеме. Байпасные указатели уровня РИЗУР-НБК-ГЛАСС-П могут эксплуатироваться как в закрытых помещениях, так и на открытых установках в широком диапазоне климатических условий на химических, нефтехимических, медицинских, пищевых и других производствах в различных отраслях промышленности.
Принцип действия РИЗУР-НБК-ГЛАСС-П основан на законе о сообщающихся сосудах – уровень, отображаемый прибором, равен уровню измеряемой жидкости внутри резервуара. Байпасный указатель уровня РИЗУР-НБК-ГЛАСС-П с водоуказательными плоскими стеклами является простым и надежным решением отображения уровня жидкости в больших и малых резервуарах.
Стандартно байпасные указатели уровня РИЗУР-НБК-ГЛАСС-П устанавливаются на боковой стенке резервуара. При необходимости присоединительные элементы байпасного указателя уровня могут располагаться сверху или с выносом в сторону.
Особенности
- Точность считывания показаний
- Максимальная рабочая температура до + 300 °C
- Максимальное рабочее давление до 16 МПа
- Различные исполнения по материалам, в том числе для агрессивных сред
- Длительный срок службы, простота конструкции, легкость очистки и технического обслуживания
Помимо водоуказательных плоских стекол, использующихся в байпасных указателях уровня РИЗУР-НБК-ГЛАСС-П, в уровнемерах РИЗУР-НБК-ГЛАСС-К и РИЗУР-НБК-ГЛАСС-С для указания уровня жидкости применяются также термостойкие кварцевые трубки.
Технические характеристики
| Материал арматуры | 12х18н10т (AISI 321) 10Х17Н13М2 (аналог AISI 316Ti) 08х18н10 (аналог AISI 304) другие материалы по согласованию с изготовителем
|
| Тип стекла | стекло |
| Исполнение |
|
| Максимальная температура рабочей среды, °С | +300 |
| Рабочее давление, МПа | 0,6 1,0 1,6 2,5 4,0 6,3 По согласованию с изготовителем возможно исполнение для давлений до 10 и16 МПа |
| Подключение к процессу |
|
| Паровой обогрев (подключение) |
|
| Паровой обогрев, давление, МПа | ≤1,0 |
| Вентиляционное/дренажное отверстие |
|
| Температура окружающей среды при эксплуатации, °С | -60...+60 -60...+75 |
Чертежи
| РИЗУР-НБК-ГЛАСС-П1 непросветного типа |
РИЗУР-НБК-ГЛАСС-П2 просветного типа |
|
|
|
Байпасный указатель уровня со смотровым стеклом РИЗУР-НБК-ГЛАСС-П Конфигуратор
| Сертификат Электромагнитной совместимости ТР ТС 020 2011 на приборы контроля уровня.pdf | Скачать |
| Сертификат Приборы измерения и контроля расхода и уровня ТР ТС 012.pdf | Скачать |
| Код заказа РИЗУР-НБК-ГЛАСС-П.pdf | Скачать |
| Опросный лист РИЗУР-НБК-ГЛАСС-П.pdf | Скачать |
| Сертификат Приборы измерения и контроля уровня ТР ТС 032.pdf | Скачать |
| Сертификат сейсмостойкость Приборы измерения и контроля уровня.pdf | Скачать |
| Декларация ТР ТС-032 - приборы измерения и контроля уровня.pdf | Скачать |
| Сертификат -SIL2- Приборы измерения и контроля уровня и расхода.pdf | Скачать |
| Руководство по эксплуатации РИЗУР-НБК-ГЛАСС.pdf | Скачать |

