46857-11: ВЭС-450 Весы электронные на сталевозе - Производители, поставщики и поверители

Весы электронные на сталевозе ВЭС-450

ALL-Pribors default picture
Номер в ГРСИ РФ: 46857-11
Категория: Весы
Производитель / заявитель: Фирма "Siemens AG", Германия
Скачать
46857-11: Описание типа
2011-46857-11.pdf
Скачать 185.9 КБ
Свидетельство об утверждении типа СИ Открыть ...
Заказ
Поставщик: ГК "Невские весы"
Поверка
Весы электронные на сталевозе ВЭС-450 поверка на: www.ktopoverit.ru
КтоПоверит
Онлайн-сервис метрологических услуг

Для определения массы жидкой стали в печь-ковше на участке производства стали в Конверторном цехе № 2 ОАО "Новолипецкий металлургический комбинат".

Информация по Госреестру

Основные данные
Номер по Госреестру 46857-11
Наименование Весы электронные на сталевозе
Модель ВЭС-450
Характер производства Единичное
Идентификатор записи ФИФ ОЕИ d243bac4-48a2-8a33-74d0-80ff4112d7a8
Испытания
Дата Модель Заводской номер
02
на 2 шт. с зав.№ 01
Год регистрации 2011
Информация устарела
Общие данные
Технические условия на выпуск тех.документация фирмы
Класс СИ 28.01
Год регистрации 2011
Страна-производитель  Германия 
Центр сертификации СИ
Наименование центра ГЦИ СИ Липецкого ЦСМ
Адрес центра 398017, г.Липецк, ул.Гришина, 9а
Руководитель центра Кочетыгов Александр Степанович
Телефон (8*074*2) 43-12-82
Факс 43-27-47
Информация о сертификате
Срок действия сертификата . .
Номер сертификата 42701
Тип сертификата (C - серия/E - партия) Е
Дата протокола Приказ 2412 от 27.05.11 п.03
Производитель / Заявитель

Фирма "Siemens VAI Metals Technologies GmbH", ГЕРМАНИЯ

 Германия 

I IS MT SM EN ES LA 2, Reithallenstr, 1, 77731 Willstatt

Поверка

Методика поверки / информация о поверке ГОСТ Р 53228-08
Межповерочный интервал / Периодичность поверки
2 года
Зарегистрировано поверок
Актуальность информации 29.03.2026
Найти результаты поверки
Указан в паспорте или на самом приборе

Поверители

КтоПоверит
Онлайн-сервис метрологических услуг
Весы электронные на сталевозе ВЭС-450 поверка на: www.ktopoverit.ru
КтоПоверит
Онлайн-сервис метрологических услуг

Скачать

46857-11: Описание типа
2011-46857-11.pdf
Скачать 185.9 КБ
Свидетельство об утверждении типа СИ Открыть ...

Описание типа

Назначение

Весы электронные на сталевозе ВЭС-450 (далее - весы) предназначены для определения массы жидкой стали в печь-ковше на участке производства стали в Конверторном цехе № 2 ОАО «Новолипецкий металлургический комбинат».

Описание

Весы типа ВЭС-450 являются весами электронными, стационарными, с автоматическим уравновешиванием и с дискретным отсчетным устройством.

В состав весов входят:

- грузоприемное устройство в виде двух балок со встроенными датчиками;

- датчики весоизмерительные тензорезисторные типа RTN класса точности С3 грузоподъемностью 150 т, фирмы Hottinger Baldwin Messtechnik GmbH, Германия в количестве 4 шт., номер Госреестра СИ 21175-07;

- прибор весоизмерительный WE2110 фирмы Hottinger Baldwin Messtechnik GmbH, Германия, c устройством индикации номер Госреестра СИ 20785-07;

- ПЭВМ.

Заводские номера весов, датчиков весоизмерительных тензорезисторных и прибора весоизмерительного указаны в таблице 1.

Таблица 1

№ п/п

Заводские номера весов ВЭС-450

Заводские номера приборов весоизмерительных WE2110

Заводские номера датчиков весоизмерительных тензорезисторных

1

2

3

4

1

01

3241666

01, 02, 03, 04

2

02

3241667

05, 06, 07, 08

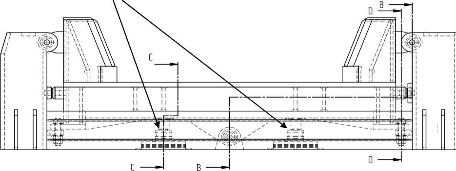
Внешний вид весов представлен на рисунке 1.

Прибор весоизмерительный

Тензорезисторные датчики

Сталевоз с грузоприемным устройством

Рисунок 1 - Внешний вид весов

Принцип действия весов основан на преобразовании деформации упругих элементов тензорезисторных датчиков, возникающей под действием силы тяжести взвешиваемого груза, в аналоговый электрический сигнал, изменяющийся пропорционально массе груза. Далее аналоговый электрический сигнал поступает в прибор весоизмерительный, в котором сигнал обрабатывается, и значение массы взвешиваемого груза индицируется в устройстве индикации и передается в ПЭВМ. Взвешивание происходит в статическом режиме.

Весы снабжены следующими функциями:

- автоматическая и полуавтоматическая установка нуля;

- выборка массы тары;

- сигнализация об ограничении диапазона взвешивания.

Программное обеспечение

Идентификационные данные программного обеспечения приведены в таблице 2.

Таблица 2

Наименование программного обеспечения

Идентификационное наименование программного обеспечения

Номер версии (идентификационный номер) программного обеспечения

Цифровой идентификатор программного обеспечения (контрольная сумма исполняемого кода)

Алгоритм вычисления цифрового идентификатора программного обеспечения

НВМ WE2110 Р54

Software version: P53E

Р54х 4-1

Сигма-Дельта АЦП

* Примечание. P54x4-1 — номер версии ПО, не влияющего на законодательно контролируемые параметры ПО.

Программное обеспечение (ПО) весов разработано фирмой Hottinger Baldwin Messtechnik GmbH (HBM), Германия. ПО весов является встроенным и реализовано в приборе весоизмерительном WE2110, который встроен в отдельный шкаф, что соответствует требованиям п. 5.5 ГОСТ Р 53228-2008 «Дополнительные требования к электронным устройствам с программным управлением» в части устройств со встроенным ПО. Внутри корпуса шкафа ПО защищено заводской голографической наклейкой, которая разрушается при попытке его изъятия. Функционирование программного обеспечения не влияет на метрологические характеристики весов. Для защиты от несанкционированных корректировок измеряемых параметров предусмотрен многоступенчатый доступ к текущим данным и параметрам настройки весов, индивидуальные пароли, программные средства для защиты файлов и баз данных. Места входа в ПО опломбированы.

ПО не может быть модифицировано, загружено или прочитано через какой-либо интерфейс после опломбирования. Номер версии ПО отображается на дисплее внешнего устройства при включении весов или может быть вызван через меню ПО. Для предотвращения воздействий и защиты законодательно контролируемых параметров служит административный пароль и электронное клеймо - случайное число, которое автоматически обновляется после каждого сохранения изменений, внесенных в законодательно контролируемые параметры. Цифровое значение электронного клейма заносится в паспорт весов и подтверждается оттиском пове-рительного клейма. Защита ПО от непреднамеренных и преднамеренных воздействий по МИ 3286-2010 соответствует уровню «С».

Поверочные и пломбировочные клейма наносятся на задней панели весоизмерительного прибора WE2110. Места наклейки поверительных и пломбировочных клейм (наклеек) указаны на рисунке 2.

Поверительное клеймо (наклейка)

Рисунок 2 - Места нанесения поверительных и пломбировочных клейм (наклеек).

овочные наклейки

Пломбировочная наклейка

Технические характеристики

Класс точности весов по ГОСТ Р 53228-2008 Наименьший предел взвешивания (Min), т Наибольший предел взвешивания (Max), т Цена поверочного деления (е), т Дискретность отсчета (d), т

Погрешность устройства установки нуля, е Пределы допускаемой абсолютной погрешности, т Предельное значение индикации, кг Реагирование ( чувствительность), е Габаритные размеры весов, - (длина х ширина х высота), мм Масса весов, кг

Электрическое питание весов:

средний

1,0

450,0

1,0

1,0

± 0,25

± 1,00

20 % Мах

1,4

5550х1700х 440

3500

- напряжение питания, В

- частота, Гц

Потребляемая мощность не более, Вт

Условия эксплуатации грузоприемного и весового устройств:

от 187 до 242

50±1

100

- диапазон рабочих температур, °С

- относительная влажность воздуха, %

- атмосферное давление, кПа

от -30 до 80

30-80

от 84 до 107

Время взвешивания, с

Время прогрева весов, мин.

Значение вероятности безотказной работы за 2000 часов

Средний срок службы не менее, лет

6

до 5

0,92

10

Знак утверждения типа

Знак утверждения типа наносится типографским способом на титульном листе Руководства по эксплуатации ВС 4274-003-05757665-2011 РЭ.

Комплектность

1Грузоприемная платформа в виде 2-х балок на раме сталевоза

2 Датчики весоизмерительные тензорезисторные типа RTN класса точности С3 грузоподъемностью 150 т,

фирмы Hottinger Baldwin Messtechnik GmbH, Германия

3 Прибор весоизмерительный типа WE2110

4 ПЭВМ

5 Комплект соединительных кабелей

6 Руководство по эксплуатации ВС 4274-003-05757665-2011 РЭ

1 шт.

4 шт.

1 шт.

1 комп.

1 комп.

1 шт.

Поверка

Приложению Н «Методика поверки весов» ГОСТ Р 53228-2008 «Весы неавтоматического действия. Часть 1. Метрологические и технические требования. Испытания».

Основные средства поверки - гири с номинальным значением массы 2 т класса точности М1 по ГОСТ 7328-2001, гири с номинальным значением массы 5 кг, 20 кг, класса точности М1 по ГОСТ 7328-2001.

Сведения о методах измерений

Метод измерений изложен в «Руководстве по эксплуатации весов ВЭС-450 ВС 4274-00305757665-2011 РЭ».

Нормативные документы

1 На технические требования к весам и требования к методам поверки и испытаний:

ГОСТ Р 53228-2008 «Весы неавтоматического действия. Часть 1. Метрологические и технические требования. Испытания»,

2 На государственную поверочную схему:

ГОСТ 8.021-2005 «ГСИ. Государственная поверочная схема для средств измерений массы».

Рекомендации к применению

Область применения весов - осуществление производственного контроля за соблюдением установленных законодательством Российской Федерации требований промышленной безопасности к эксплуатации опасного производственного объекта.

Другие Весы

Default ALL-Pribors Device Photo
46858-11
ВЭБ-4 Весы электронные бункерные
Фирма "Siemens VAI Metals Technologies GmbH", ГЕРМАНИЯ
Для определения массы легирующих материалов в процессе доводки металла до заданного химического состава на участке изготовления стали в печь-ковшах № 01 и № 02 в Конверторном цехе № 2 ОАО "Новолипецкий металлургический комбинат".
Default ALL-Pribors Device Photo
46902-11
Seller SL Весы электронные
Фирма "SD Scale Co. Ltd.", КИТАЙ
Для измерений массы товаров.
Default ALL-Pribors Device Photo
46903-11
М8700 Весы монорельсовые
ООО НПП "Метра", РОССИЯ, г.Обнинск
Для статического определения массы товаров на различных предприятиях торговли, промышленности и сельского хозяйства.
Default ALL-Pribors Device Photo
46982-11
РАИЛ-К Весы конвейерные
ООО "РАИЛ", РОССИЯ, г.Новокузнецк
Для измерения массы сыпучих материалов, проходящих через ленточный конвейер.
46986-11
BEFESA-РУС Весы для взвешивания пакетов чушек из алюминия
Филиал ООО "РУС-Инжиниринг", РОССИЯ, г.Шелехов
Для статического взвешивания пакетов чушек из алюминия.