Резервуары стальные горизонтальные цилиндрические РГС-20
| Номер в ГРСИ РФ: | 73749-18 |
|---|---|
| Категория: | Резервуары |
| Производитель / заявитель: | АО "Первомайскхиммаш", р.п.Первомайский |
Резервуары стальные горизонтальные цилиндрические РГС-20 (далее - резервуары) предназначены для измерений объема, а также приема, хранения и отпуска нефтепродуктов.
Информация по Госреестру
| Основные данные | ||||||||||
|---|---|---|---|---|---|---|---|---|---|---|
| Номер по Госреестру | 73749-18 | |||||||||
| Наименование | Резервуары стальные горизонтальные цилиндрические | |||||||||
| Модель | РГС-20 | |||||||||
| Характер производства | Единичное | |||||||||
| Идентификатор записи ФИФ ОЕИ | 4812c40f-b103-d423-f2fa-3d8239222e18 | |||||||||
| Испытания |
|
|||||||||
Производитель / Заявитель
Открытое акционерное общество «Первомайскхиммаш» (ОАО «Первомайскхиммаш»), Тамбовская обл., Первомайский район, рабочий поселок Первомайский
РОССИЯ
Поверка
| Межповерочный интервал / Периодичность поверки |
5 лет
|
| Зарегистрировано поверок | |
| Найдено поверителей | |
| Успешных поверок (СИ пригодно) | 6 (100%) |
| Неуспешных поверок (СИ непригодно) | 0 (0 %) |
| Актуальность информации | 29.03.2026 |
Поверители
Скачать
|
73749-18: Описание типа
2022-73749-18.pdf
|
Скачать | 305.1 КБ | |
|
73749-18: Методика поверки
2021-mp73749-18.pdf
|
Скачать | 70 КБ |
Описание типа
Назначение
Резервуары стальные горизонтальные цилиндрические РГС-20 (далее - резервуары) предназначены для измерений объема, а также приема, хранения и отпуска нефтепродуктов.
Описание
Принцип действия резервуаров основан на заполнении их нефтепродуктом до определенного уровня, соответствующего объему нефтепродукта согласно градуировочной таблице резервуара.
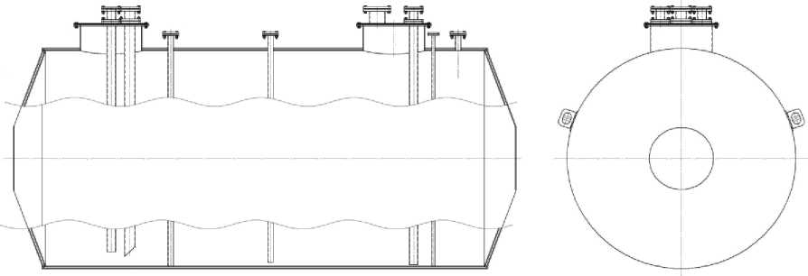
Каждый из резервуаров представляет собой горизонтальный цилиндрический металлический корпус с коническими днищами с расположенными сверху горловинами для установки технологического оборудования, осмотра и ремонта. Конструкция резервуаров предусматривает только подземную установку. Резервуары оснащаются кольцами жесткости для возможности беспрепятственного и безопасного прохождения обслуживающего персонала внутри резервуара. Резервуары комплектуются хомутами для крепления к фундаменту. Хомуты и крепления обеспечивают неподвижное состояние резервуаров на весь период их эксплуатации. На внутренние поверхности резервуаров нанесено антикоррозийное покрытие. Резервуары снабжены электронасосными агрегатами для откачки хранимой среды.
Резервуары стальные горизонтальные цилиндрические РГС-20 зав. №№ 59077, 59078 установлены на территории ГПС «Волгоград» АО «Транснефть-Приволга», по адресу: 400080, Российская Федерация, Волгоградская обл., г.о. Волгоград, ул. 40 лет ВЛКСМ, соор. 100 В.
Общий вид места установки резервуаров стальных горизонтальных цилиндрических РГС-20 представлен на рисунке 1. Эскиз резервуаров стальных горизонтальных цилиндрических РГС-20 представлен на рисунке 2.
Рисунок 1 - Общий вид места установки резервуаров стальных горизонтальных цилиндрических РГС-20 зав. №№ 59077, 59078
Рисунок 2 - Эскиз резервуаров стальных горизонтальных цилиндрических РГС-20 зав. №№ 59077, 59078
Пломбирование резервуаров стальных горизонтальных цилиндрических РГС-20 не предусмотрено.
Программное обеспечение отсутствует.
Технические характеристики
Таблица 1 - Метрологические характеристики
|
Наименование характеристики |
Значение |
|
Номинальная вместимость, м3 |
20 |
|
Пределы допускаемой относительной погрешности определения вместимости, % |
±0,25 |
Таблица 2 - Основные технические характеристики
|
Наименование характеристики |
Значение |
|
Условия эксплуатации: - температура рабочей среды, °С - температура окружающего воздуха, °С - атмосферное давление, кПа |
от -5 до +40 от -50 до +50 от 84,0 до 106,7 |
|
Расчетное давление, МПа, не более |
0,07 |
|
Срок службы, лет, не менее |
30 |
Знак утверждения типа
наносится на титульный лист паспорта методом печати.
Комплектность
Таблица 3 - Комплектность средства измерений
|
Наименование |
Обозначение |
Количество |
|
Резервуар стальной горизонтальный цилиндрический |
РГС-20 зав. №№ 59077, 59078 |
2 шт. |
|
Паспорт |
- |
2 экз. |
|
Градуировочная таблица |
- |
2 экз. |
Поверка
осуществляется по документу ГОСТ 8.346-2000 «ГСИ. Резервуары стальные горизонтальные цилиндрические. Методика поверки».
Основные средства поверки:
- расходомер жидкости турбинный PTF040 (регистрационный номер 11735-06), предел допускаемой относительной погрешности измерений объема и объемного расхода жидкости ±0,15 %;
- уровнемер «Струна-М» (регистрационный номер 15669-02), предел допускаемой приведенной погрешности измерений уровня ±1 мм;
- рулетка измерительная металлическая 2-го класса точности Р20У2Г (регистрационный номер 55464-13), класс точности 2;
- рулетка измерительная металлическая типа Р30У2К (регистрационный номер 51171-12), класс точности 2;
- измеритель влажности и температуры ИВТМ-7 (регистрационный номер 15500-12), предел допускаемой абсолютной погрешности измерения температуры ±0,2 °С.
Допускается применение аналогичных средств поверки, обеспечивающих определение метрологических характеристик поверяемых средств измерений с требуемой точностью.
Знак поверки наносится на свидетельство о поверке и градуировочную таблицу резервуара.
Сведения о методах измерений
ГОСТ 8.595-2004 «ГСИ. Масса нефти и нефтепродуктов. Общие требования к методикам выполнения измерений».
Нормативные документы
Приказ Федерального агентства по техническому регулированию и метрологии от 07.02.2018 г. № 256 «Об утверждении государственной поверочной схемы для средств измерений массы и объема жидкости в потоке, объема жидкости и вместимости при статических измерениях, массового и объемного расходов жидкости»
ГОСТ 8.346-2000 «ГСИ. Резервуары стальные горизонтальные цилиндрические. Методика поверки»
ТУ 3661-116-00217352-2004 «Резервуары типа РГС. Технические условия»
