Резервуары стальные горизонтальные цилиндрические РГС-100
| Номер в ГРСИ РФ: | 74716-19 |
|---|---|
| Категория: | Резервуары |
| Производитель / заявитель: | ООО "Инвэнт-Технострой", г.Казань |
Резервуары стальные горизонтальные цилиндрические РГС-100 (далее - резервуары) предназначены для измерений объема, а также хранения, слива светлых и темных нефтепродуктов, нефти, масел, конденсата (в том числе в смеси с водой), промывочной жидкости (растворы моющих средств), а также для аварийного сброса нефти и нефтепродуктов на предприятиях нефтеперерабатывающей, нефтехимической, нефтяной и газовой отраслей промышленности.
Информация по Госреестру
| Основные данные | ||||||||||
|---|---|---|---|---|---|---|---|---|---|---|
| Номер по Госреестру | 74716-19 | |||||||||
| Наименование | Резервуары стальные горизонтальные цилиндрические | |||||||||
| Модель | РГС-100 | |||||||||
| Характер производства | Единичное | |||||||||
| Идентификатор записи ФИФ ОЕИ | 00010ab6-f52b-39b5-cfd2-ff1770645a33 | |||||||||
| Испытания |
|
|||||||||
Производитель / Заявитель
ООО "Инвэнт-Технострой", г. Казань
РОССИЯ
Поверка
| Межповерочный интервал / Периодичность поверки |
5 лет
|
| Зарегистрировано поверок | |
| Актуальность информации | 29.03.2026 |
Поверители
Скачать
|
74716-19: Описание типа
2023-74716-19.pdf
|
Скачать | 216.2 КБ | |
|
74716-19: Методика поверки
2022-mp74716-19.pdf
|
Скачать | 70 КБ |
Описание типа
Назначение
Резервуары стальные горизонтальные цилиндрические РГС-100 (далее - резервуары) предназначены для измерений объема, а также хранения, слива светлых и темных нефтепродуктов, нефти, масел, конденсата (в том числе в смеси с водой), промывочной жидкости (растворы моющих средств), а также для аварийного сброса нефти и нефтепродуктов на предприятиях нефтеперерабатывающей, нефтехимической, нефтяной и газовой отраслей промышленности.
Описание
Принцип действия резервуаров основан на заполнении их нефтепродуктами до определенного уровня, соответствующего объему нефтепродукта, указанному в градуировочной таблице каждого из резервуаров.
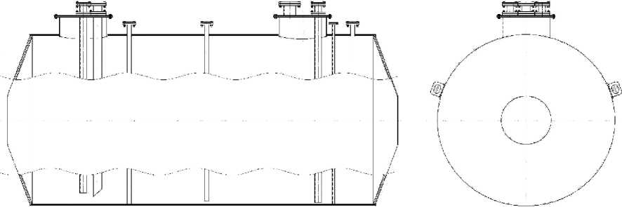
Каждый из резервуаров представляют собой горизонтальный цилиндрический металлический корпус с усеченно-коническими днищами, с расположенными сверху горловинами для установки технологического оборудования, осмотра и ремонта. Конструкция резервуаров предусматривает подземную установку. Резервуары оснащаются кольцами жесткости с условием возможности беспрепятственного и безопасного прохождения обслуживающего персонала внутри резервуаров. Резервуары комплектуются хомутами для крепления к фундаменту. Хомуты и крепления должны обеспечивать неподвижное состояние каждого из резервуаров на весь период их эксплуатации. На внутреннюю поверхность каждого из резервуаров нанесено антикоррозийное покрытие. Резервуары снабжены электронасосным агрегатом для откачки хранимой среды.
Резервуары стальные горизонтальные цилиндрические РГС-100 зав. №№ 51, 52 установлены на территории ГПС «Тингута» АО «Транснефть-Приволга», по адресу: 404184, Российская Федерация, Волгоградская обл., Светлоярский район, ст. Тингута, д. 20.
Общий вид мест установки резервуаров стальных горизонтальных цилиндрических представлен на рисунках 1 и 2. Эскиз резервуаров стальных горизонтальных цилиндрических представлен на рисунке 3.
Рисунок 1 - Общий вид места установки резервуара стального горизонтального цилиндрического РГС-100 зав. № 51
Рисунок 2 - Общий вид места установки резервуара стального горизонтального цилиндрического РГС-100 зав. № 52
Рисунок 3 - Эскиз резервуаров стальных горизонтальных цилиндрических
РГС-100 зав. №№ 51, 52
Пломбирование резервуаров стальных горизонтальных цилиндрических РГС-100 не предусмотрено.
Программное обеспечение
отсутствует.
Технические характеристики
Таблица 1 - Метрологические характеристики
|
Наименование характеристики |
Значение |
|
Номинальная вместимость, м3 |
100 |
|
Пределы допускаемой относительной погрешности определения вместимости, % |
±0,25 |
Таблица 2 - Основные технические характеристики
|
Наименование характеристики |
Значение |
|
Условия эксплуатации: - температура рабочей среды, °С |
от -15 до +80 |
|
Расчетное давление, МПа, не более |
0,07 |
|
Срок службы, лет, не менее |
30 |
Знак утверждения типа
наносится на титульный лист паспорта методом печати.
Комплектность
Таблица 3 - Комплектность средства измерений
|
Наименование |
Обозначение |
Количество |
|
Резервуар стальной горизонтальный цилиндрический |
РГС-100 №№ 51, 52 |
2 шт. |
|
Паспорт |
РГС 100.00.000.ПС |
2 экз. |
|
Градуировочная таблица |
- |
2 экз. |
Поверка
осуществляется по документу ГОСТ 8.346-2000 «ГСИ. Резервуары стальные горизонтальные цилиндрические. Методика поверки».
Основные средства поверки:
- расходомер жидкости турбинный PTF040 (регистрационный номер 11735-06), предел допускаемой относительной погрешности измерений объема и объемного расхода жидкости ±0,15 %;
- уровнемер «Струна-М» (регистрационный номер 15669-02), предел допускаемой приведенной погрешности измерений уровня ±1 мм;
- рулетка измерительная металлическая 2 класса точности Р20У2Г (регистрационный номер 55464-13), класс точности 2;
- рулетка измерительная металлическая типа Р30У2К (регистрационный номер 51171-12), класс точности 2;
- измеритель влажности и температуры ИВТМ-7 (регистрационный номер 15500-12), предел допускаемой абсолютной погрешности измерения температуры ±0,2 °С.
Допускается применение аналогичных средств поверки, обеспечивающих определение метрологических характеристик поверяемых средств измерений с требуемой точностью.
Знак поверки наносится на свидетельство о поверке и градуировочную таблицу каждого из резервуаров.
Сведения о методах измерений
ГОСТ 8.595 - 2004 «ГСИ. Масса нефти и нефтепродуктов. Общие требования к методикам выполнения измерений».
Нормативные документы
Приказ Федерального агентства по техническому регулированию и метрологии от 07.02.2018 г. № 256 «Об утверждении государственной поверочной схемы для средств измерений массы и объема жидкости в потоке, объема жидкости и вместимости при статических измерениях, массового и объемного расходов жидкости»
ГОСТ 8.346-2000 «ГСИ. Резервуары стальные горизонтальные цилиндрические. Методика поверки»
ТУ 3615-008-47206430-11 «Технические условия»


