Резервуары горизонтальные стальные цилиндрические РГСП-50, РГСП-75
| Номер в ГРСИ РФ: | 75160-19 |
|---|---|
| Категория: | Резервуары |
| Производитель / заявитель: | ООО "Сибирские стальные конструкции", г.Новосибирск |
Резервуары горизонтальные стальные цилиндрические РГСП-50, РГСП-75 (далее по тексту - резервуары) предназначены для измерений объема нефти и нефтепродуктов, а также для их приема, хранения и отпуска.
Информация по Госреестру
| Основные данные | ||||||||||
|---|---|---|---|---|---|---|---|---|---|---|
| Номер по Госреестру | 75160-19 | |||||||||
| Наименование | Резервуары горизонтальные стальные цилиндрические | |||||||||
| Модель | РГСП-50, РГСП-75 | |||||||||
| Характер производства | Единичное | |||||||||
| Идентификатор записи ФИФ ОЕИ | ed4dc397-0d57-9d51-bfbb-394aa575455b | |||||||||
| Испытания |
|
|||||||||
Производитель / Заявитель
ООО "Сибирские стальные конструкции", г. Новосибирск
РОССИЯ
Поверка
| Межповерочный интервал / Периодичность поверки |
5 лет
|
| Зарегистрировано поверок | |
| Найдено поверителей | |
| Успешных поверок (СИ пригодно) | 3 (100%) |
| Неуспешных поверок (СИ непригодно) | 0 (0 %) |
| Актуальность информации | 29.03.2026 |
Поверители
Скачать
|
75160-19: Описание типа
2023-75160-19.pdf
|
Скачать | 125.4 КБ | |
|
75160-19: Методика поверки
2022-mp75160-19.pdf
|
Скачать | 70 КБ |
Описание типа
Назначение
Резервуары горизонтальные стальные цилиндрические РГСП-50, РГСП-75 (далее по тексту - резервуары) предназначены для измерений объема нефти и нефтепродуктов, а также для их приема, хранения и отпуска.
Описание
Принцип действия резервуаров основан на измерении объема нефти и нефтепродуктов в зависимости от уровня их наполнения.
Резервуары представляют собой стальные сосуды, состоящие из цилиндрической стенки и двух конических днищ.
Резервуары оборудованы приемно-раздаточными патрубками и технологическими люками.
Тип резервуаров - горизонтальные стальные цилиндрические подземные.
Резервуары горизонтальные стальные цилиндрические РГСП-50 (зав. №№ 147, 148), РГСП-75 (зав. № 149) расположены на складе горюче-смазочных материалов (топливозаправочный комплекс) «Украинка» АО «Газпромнефть-Аэро»: 676440, Амурская обл., Серышевский р-н, с. Украинка.
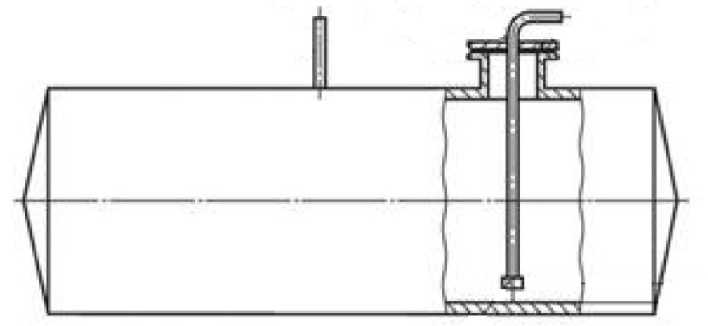
Общий вид резервуаров представлен на рисунке 1.
Рисунок 1 - Общий вид резервуаров
Пломбирование резервуаров не предусмотрено.
Программное обеспечение
отсутствует.
Технические характеристики
Таблица 1 - Метрологические характеристики
|
Наименование характеристики |
Значение | |
|
РГСП-50 |
РГСП-75 | |
|
Номинальная вместимость, м3 |
50 |
75 |
|
Пределы допускаемой относительной погрешности определения вместимости, % |
±0,25 | |
Таблица 2 - Основные технические характеристики
|
Наименование характеристики |
Модиф |
шкация |
|
РГСП-50 |
РГСП-75 | |
|
Значение | ||
|
Условия эксплуатации: - температура окружающего воздуха, °С - атмосферное давление, кПа |
от -37 до +25 от 84,0 до 106,7 |
от -41 до +25 от 84,0 до 106,7 |
|
Средний срок службы, лет, не менее |
10 | |
Знак утверждения типа
наносится на титульный лист паспорта типографским способом.
Комплектность
Таблица 3 - Комплектность средства измерений
|
Наименование |
Обозначение |
Количество |
|
Резервуар горизонтальный стальной цилиндрический |
РГСП-50 |
2 шт. |
|
Резервуар горизонтальный стальной цилиндрический |
РГСП-75 |
1 шт. |
|
Паспорт |
3 экз. |
Поверка
осуществляется по документу ГОСТ 8.346-2000 «ГСИ. Резервуары стальные горизонтальные цилиндрические. Методика поверки».
Основные средства поверки:
- комплекс градуировки резервуаров «Зонд» (рег. № 17906-08) и системы измерительные «Струна» (рег. №28116-04);
- рулетка измерительная металлическая Р10У2Г (рег. № 51171-12);
- термометр ртутный стеклянный лабораторный ТЛ-4 (рег. № 303-91).
Допускается применение аналогичных средств поверки, обеспечивающих определение метрологических характеристик резервуаров с требуемой точностью.
Знак поверки наносится в свидетельство о поверке и в градуировочную таблицу.
Сведения о методиках (методах) измерений приведены в эксплуатационном документе.
Нормативные документы
Государственной поверочная схема для средств измерений массы и объема жидкости в потоке, объема жидкости и вместимости при статических измерениях, массового и объемного расходов жидкости, утвержденная Приказом Федерального агентства по техническому регулированию и метрологии от 07.02.2018 г. № 256
ГОСТ 8.346-2000 ГСИ. Резервуары стальные горизонтальные цилиндрические. Методика поверки
