Резервуары стальные горизонтальные цилиндрические РГС-25
| Номер в ГРСИ РФ: | 94889-25 |
|---|---|
| Категория: | Резервуары |
| Производитель / заявитель: | ООО "ТАИФ-НК АЗС", г. Казань |
Резервуары стальные горизонтальные цилиндрические РГС-25 (далее - резервуары) предназначены для измерений объема нефтепродуктов, а также для их приема, хранения и отпуска.
Информация по Госреестру
| Основные данные | ||||||||||||||||
|---|---|---|---|---|---|---|---|---|---|---|---|---|---|---|---|---|
| Номер по Госреестру | 94889-25 | |||||||||||||||
| Наименование | Резервуары стальные горизонтальные цилиндрические | |||||||||||||||
| Модель | РГС-25 | |||||||||||||||
| Характер производства | Единичное | |||||||||||||||
| Идентификатор записи ФИФ ОЕИ | 37a02d5c-b6ea-9f79-2cdf-2841390b360a | |||||||||||||||
| Испытания |
|
|||||||||||||||
Производитель / Заявитель
Общество с ограниченной ответственностью "ТАИФ-НК АЗС" (ООО "ТАИФ-НК АЗС"), г. Казань
Поверка
| Межповерочный интервал / Периодичность поверки |
5 лет
|
| Зарегистрировано поверок | |
| Найдено поверителей | |
| Успешных поверок (СИ пригодно) | 4 (100%) |
| Неуспешных поверок (СИ непригодно) | 0 (0 %) |
| Актуальность информации | 29.03.2026 |
Поверители
Скачать
|
94889-25: Описание типа
2025-94889-25.pdf
|
Скачать | 291.2 КБ | |
|
94889-25: Методика поверки
2025-mp94889-25.pdf
|
Скачать | 70.3 КБ |
Описание типа
Назначение
Резервуары стальные горизонтальные цилиндрические РГС-25 (далее - резервуары) предназначены для измерений объема нефтепродуктов, а также для их приема, хранения и отпуска.
Описание
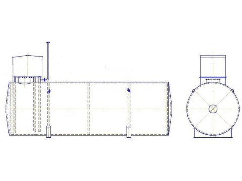
Тип резервуаров - стальные горизонтальные цилиндрические, номинальной вместимостью 25 м3 подземного расположения.
Принцип действия резервуаров основан на заполнении их нефтепродуктом до определенного уровня, соответствующего заданному значению объема.
Резервуары представляют собой горизонтально расположенные цилиндрические стальные сосуды с днищами.
Заполнение и выдача продукта осуществляется через приемно-раздаточные патрубки.
Заводские номера резервуаров в виде цифрового обозначения, состоящие из арабских цифр, нанесены типографским способом на табличку резервуара. Табличка крепится к люку резервуара.
Резервуары РГС-25 с заводскими номерами 3, 4, 5, 6 расположены на территории АЗС №261, ООО «ТАИФ-НК АЗС» по адресу: 426000, Удмуртская Республика, Малопургинский р-н, между с. Малая Пурга и д. Орлово.
Эскиз общего вида резервуаров приведен на рисунке 1. Горловины резервуаров РГС-25 приведены на рисунках 2, 3.
Нанесение знака поверки на средство измерений не предусмотрено.
Рисунок 1 - Эскиз общего вида резервуаров РГС-25
Рисунок 2 - Горловины резервуаров РГС-25 зав.№№ 3, 4
Рисунок 3 - Горловины резервуаров РГС-25 зав.№№ 5, 6
Пломбирование резервуаров РГС-25 не предусмотрено.
Технические характеристики
Таблица 1 - Метрологические характеристики
|
Наименование характеристики |
Значение |
|
Номинальная вместимость, м3 |
25 |
|
Пределы допускаемой относительной погрешности определения вместимости (объемный метод), % |
±0,25 |
Таблица 2 - Технические характеристики
|
Наименование характеристики |
Значение |
|
Условия эксплуатации: Температура окружающего воздуха, оС Атмосферное давление, кПа |
от -50 до +50 от 84,0 до 106,7 |
Т аблиц а 3 - Показатели надежности
|
Наименование характеристики |
Значение |
|
Средний срок службы, лет, не менее |
20 |
Знак утверждения типа
наносится на титульный лист паспорта резервуара типографским способом.
Комплектность
Таблица 4 - Комплектность средства измерений
|
Наименование |
Обозначение |
Количество |
|
Резервуар стальной горизонтальный цилиндрический |
РГС-25 |
1 шт. |
|
Паспорт |
- |
1 экз. |
|
Градуировочная таблица |
- |
1 экз. |
Сведения о методиках (методах) измерений приведены в пункте 8 паспорта на резервуар.
Нормативные документы
Приказ Росстандарта от 26 сентября 2022 г. № 2356 «Об утверждении Государственной поверочной схемы для средств измерений массы и объема жидкости в потоке, объема жидкости и вместимости при статических измерениях, массового и объемного расходов жидкости».


