Резервуар стальной горизонтальный цилиндрический РГС-16
| Номер в ГРСИ РФ: | 95183-25 |
|---|---|
| Категория: | Резервуары |
| Производитель / заявитель: | ООО "НПО Нефтемаш", г. Пенза |
Резервуар стальной горизонтальный цилиндрический РГС-16 (далее - РГС) предназначен для измерения объема жидкости.
Информация по Госреестру
| Основные данные | |||||||
|---|---|---|---|---|---|---|---|
| Номер по Госреестру | 95183-25 | ||||||
| Наименование | Резервуар стальной горизонтальный цилиндрический | ||||||
| Модель | РГС-16 | ||||||
| Характер производства | Единичное | ||||||
| Идентификатор записи ФИФ ОЕИ | 3f8c50fc-8ce1-b2da-46f5-5534e725e10c | ||||||
| Испытания |
|
||||||
Производитель / Заявитель
Общество с ограниченной ответственностью "НПО Нефтемаш" (ООО "НПО Нефтемаш"), г. Пенза
Поверка
| Межповерочный интервал / Периодичность поверки |
5 лет
|
| Зарегистрировано поверок | |
| Найдено поверителей | |
| Успешных поверок (СИ пригодно) | 2 (100%) |
| Неуспешных поверок (СИ непригодно) | 0 (0 %) |
| Актуальность информации | 15.03.2026 |
Поверители
Скачать
|
95183-25: Описание типа
2025-95183-25.pdf
|
Скачать | 117.1 КБ | |
|
95183-25: Методика поверки
2025-mp95183-25.pdf
|
Скачать | 70.3 КБ |
Описание типа
Назначение
Резервуар стальной горизонтальный цилиндрический РГС-16 (далее - РГС) предназначен для измерения объема жидкости.
Описание
Принцип действия основан на зависимости объема жидкости, находящейся в резервуаре от уровня его наполнения.
РГС представляет собой закрытый горизонтальный цилиндрический сосуд с днищами в форме усеченного конуса, оснащенный люками и патрубками.
Место расположения РГС, заводской номер 2 ЦППН Ватьеганского месторождения ТПП «Повхнефтегаз» ООО «ЛУКОЙЛ-Западная Сибирь».
Пломбирование РГС не предусмотрено. Заводской номер в виде цифрового обозначения нанесен на информационной табличке резервуара ударным способом и указан в паспорте. Нанесение знака поверки на РГС не предусмотрено.
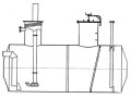
Общий вид РГС на месте эксплуатации представлен на рисунке 1. Эскиз РГС представлен на рисунке 2.
Рисунок 1 - РГС на месте эксплуатации
Рисунок 2 - Эскиз резервуара РГС-16
Технические характеристики
Таблица 1 - Метрологические характеристики____________________________________________
|
Наименование характеристики |
Значение |
|
Номинальная вместимость, м3 |
16 |
|
Пределы допускаемой относительной погрешности определения вместимости, % (объемный метод) |
±0,25 |
|
Таблица 2 - Технические характеристики | |
|
Наименование характеристики |
Значение |
|
Условия эксплуатации: - температура окружающего воздуха, °С - атмосферное давление, кПа |
от -50 до +50 от 84,0 до 106,7 |
|
Таблица 3 - Показатели надёжности | |
|
Наименование характеристики |
Значение |
|
Назначенный срок службы, лет |
20 |
Знак утверждения типананосится на титульный лист паспорта типографским способом. | |
Комплектность
Таблица 4 - Комплектность средства измерений
|
Наименование |
Обозначение |
Количество, шт./экз. |
|
Резервуар стальной горизонтальный цилиндрический |
РГС-16 |
1 |
|
Паспорт |
1 |
Сведения о методах измерений
приведены в разделе 9 «Измерение объема жидкости в резервуаре» паспорта.
Нормативные документы
Приказ Росстандарта от 26 сентября 2022 г. № 2356 «Об утверждении Государственной поверочной схемы для средств измерений массы и объема жидкости в потоке, объема жидкости и вместимости при статических измерениях, массового и объемного расходов жидкости».
Другие Резервуары

