Резервуары стальные горизонтальные цилиндрические РГС
| Номер в ГРСИ РФ: | 96296-25 |
|---|---|
| Категория: | Резервуары |
| Производитель / заявитель: | ООО "ТАИФ-НК АЗС", г. Казань |
|
96296-25: Описание типа
2025-96296-25.pdf
|
Скачать | 392.3 КБ |
Резервуары стальные горизонтальные цилиндрические РГС (далее - резервуары) предназначены для измерений объема нефтепродуктов, а также для их приема, хранения и отпуска.
Информация по Госреестру
| Основные данные | ||||||||||||||||
|---|---|---|---|---|---|---|---|---|---|---|---|---|---|---|---|---|
| Номер по Госреестру | 96296-25 | |||||||||||||||
| Наименование | Резервуары стальные горизонтальные цилиндрические | |||||||||||||||
| Модель | РГС | |||||||||||||||
| Модификации |
РГС-15 РГС-20 |
|||||||||||||||
| Приказы |
№1853 от
29.08.2025
— Об утверждении типов средств измерений
|
|||||||||||||||
| Код идентификации производства |
ОС
СИ не соответствует критериям подтверждения производства на территории
РФ в соответствии с постановлением №719
|
|||||||||||||||
| Характер производства | Единичное | |||||||||||||||
| Идентификатор записи ФИФ ОЕИ | 5e5a40d2-2b2a-44ad-1662-034851e9f01a | |||||||||||||||
| Испытания |
|
|||||||||||||||
Производитель / Заявитель
ООО «ТАИФ-НК АЗС», РОССИЯ, 420097, Респ. Татарстан (Татарстан), г.о. г. Казань, г. Казань, ул. Зинина, д. 10, офис 507
Поверка
| Методика поверки / информация о поверке |
ГОСТ 8.346-2000 Государственная система обеспечения единства измерений. Резервуары стальные горизонтальные цилиндрические. Методика поверки
(с 29.08.2025)
|
| Межповерочный интервал / Периодичность поверки |
5 лет
|
| Зарегистрировано поверок | |
| Найдено поверителей | |
| Успешных поверок (СИ пригодно) | 4 (100%) |
| Неуспешных поверок (СИ непригодно) | 0 (0 %) |
| Актуальность информации | 29.03.2026 |
Поверители
Скачать
|
96296-25: Описание типа
2025-96296-25.pdf
|
Скачать | 392.3 КБ |
Описание типа
Назначение
Резервуары стальные горизонтальные цилиндрические РГС (далее - резервуары) предназначены для измерений объема нефтепродуктов, а также для их приема, хранения и отпуска.
Описание
Принцип действия резервуаров основан на заполнении их нефтепродуктом
до определенного уровня, соответствующего заданному значению объема.
Резервуары представляют собой горизонтально расположенный цилиндрический стальной сосуд с днищами.
Заполнение и выдача продукта осуществляется через приемно-раздаточные патрубки.
Установка резервуаров РГС - подземная.
Резервуары изготовлены в следующих модификациях: РГС-15 с заводскими номерами 3, 4, РГС-20 с заводскими номерами 1, 2.
Заводские номера резервуаров в виде цифрового обозначения, состоящие из арабских цифр, нанесены типографским способом на табличку резервуара. Табличка крепится к люку резервуара.
Резервуары РГС-15 с заводскими номерами 3, 4, РГС-20 с заводскими номерами 1, 2 расположены на территории АЗС №140, ООО «ТАИФ-НК АЗС» по адресу: 422542, Республика Татарстан, р-н Зеленодольский, г. Зеленодольск, ул. Спортивная, 34А.
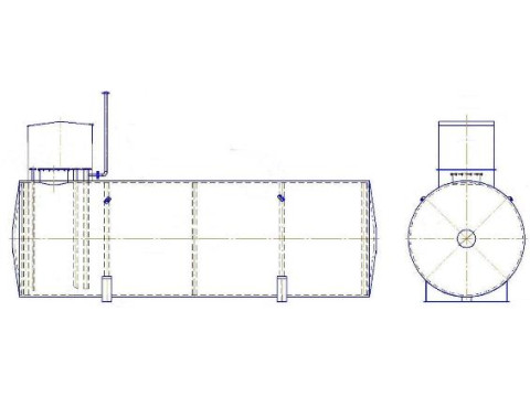
Эскиз общего вида резервуаров приведен на рисунке 1. Фотографии горловин приведены на рисунках 2, 3.
Нанесение знака поверки на средство измерений не предусмотрено.
Рисунок 1 - Эскиз общего вида резервуаров РГС
Рисунок 2 - Горловины резервуаров РГС-15 зав.№№ 3, 4
Рисунок 3 - Горловины резервуаров РГС-20 зав.№№ 1, 2
Пломбирование резервуаров РГС не предусмотрено.
Технические характеристики
Таблица 1 - Метрологические характеристики
|
Наименование характеристики |
Значение | |
|
РГС-15 |
РГС-20 | |
|
Номинальная вместимость, м3 |
15 |
20 |
|
Пределы допускаемой относительной погрешности определения вместимости (объемный метод), % |
±0,25 | |
аблица 2 - Технические характеристики
|
Наименование характеристики |
Значение |
|
Условия эксплуатации: Температура окружающего воздуха, оС Атмосферное давление, кПа |
от -50 до +50 от 84,0 до 106,7 |
Таблица 3 - Показатели надежности
|
Наименование характеристики |
Значение |
|
Средний срок службы, лет, не менее |
20 |
Знак утверждения типа
наносится на титульный лист паспорта резервуара типографским способом.
Комплектность
Таблица 4 - Комплектность средства измерений
|
Наименование |
Обозначение |
Количество |
|
Резервуар стальной горизонтальный цилиндрический |
РГС-15 |
1 шт. |
|
Паспорт |
- |
1 экз. |
|
Градуировочная таблица |
- |
1 экз. |
|
Резервуар стальной горизонтальный цилиндрический |
РГС-20 |
1 шт. |
|
Паспорт |
- |
1 экз. |
|
Градуировочная таблица |
- |
1 экз. |
Сведения о методах измерений
приведены в пункте 8 паспорта на резервуар.
Нормативные документы
Приказ Росстандарта от 26 сентября 2022 г. № 2356 «Об утверждении Государственной поверочной схемы для средств измерений массы и объема жидкости в потоке, объема жидкости и вместимости при статических измерениях, массового и объемного расходов жидкости».


