Резервуары горизонтальные ЕП-63-3000-1200-А-С0-У1
| Номер в ГРСИ РФ: | 97855-26 |
|---|---|
| Категория: | Резервуары |
| Производитель / заявитель: | ООО "Уралспецмаш", г.Пермь |
|
97855-26: Описание типа
2026-97855-26-1.pdf
|
Скачать | 163.5 КБ |
Резервуары горизонтальные ЕП-63-3000-1200-А-С0-У1 (далее - резервуары) предназначены для измерений объема светлых нефтепродуктов, а также для сбора и временного хранения дренажа (нефтепродукта).
Информация по Госреестру
| Основные данные | ||||||||||
|---|---|---|---|---|---|---|---|---|---|---|
| Номер по Госреестру | 97855-26 | |||||||||
| Наименование | Резервуары горизонтальные | |||||||||
| Модель | ЕП-63-3000-1200-А-С0-У1 | |||||||||
| Приказы |
№356 от
02.03.2026
— Об утверждении типов средств измерений
|
|||||||||
| Код идентификации производства |
ОС
СИ не соответствует критериям подтверждения производства на территории
РФ в соответствии с постановлением №719
|
|||||||||
| Характер производства | Единичное | |||||||||
| Идентификатор записи ФИФ ОЕИ | 9f15a622-e5b0-ccae-929b-8a712a8b5ee5 | |||||||||
| Испытания |
|
|||||||||
Производитель / Заявитель
ООО «Уралспецмаш», РОССИЯ, 617065, Пермский край, г. Краснокамск, ул. Шоссейная, д. 43
Поверка
| Методика поверки / информация о поверке |
ГОСТ 8.346-2000 Государственная система обеспечения единства измерений. Резервуары стальные горизонтальные цилиндрические. Методика поверки.
(с 02.03.2026)
|
| Межповерочный интервал / Периодичность поверки |
5 лет
|
| Зарегистрировано поверок | |
| Актуальность информации | 26.04.2026 |
Поверители
Скачать
|
97855-26: Описание типа
2026-97855-26.pdf
Файл устарел
|
Скачать | 163.5 КБ | |
|
97855-26: Описание типа
2026-97855-26-1.pdf
|
Скачать | 163.5 КБ |
Описание типа
Назначение
Резервуары горизонтальные ЕП-63-3000-1200-А-С0-У1 (далее - резервуары) предназначены для измерений объема светлых нефтепродуктов, а также для сбора и временного хранения дренажа (нефтепродукта).
Описание
Принцип действия резервуара основан на измерении объема при сборе и временном хранения дренажа (нефтепродукта) в соответствии с градуировочной таблицей.
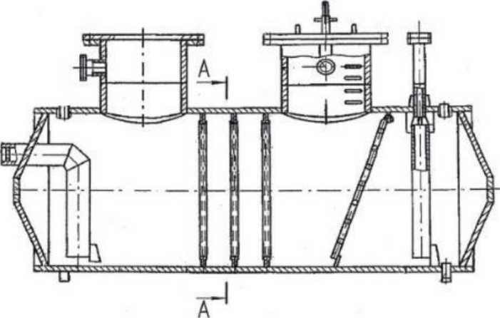
Конструктивно резервуары представляют собой горизонтально расположенный цилиндрический стальной сосуд с днищами. Заполнение и выдача продукта осуществляются через приемно-раздаточные патрубки. Вариант установки резервуаров - подземный.
Заводские номера резервуаров в виде цифрового обозначения, состоящие из арабских цифр, нанесены ударным методом на маркировочные таблички, прикрепленные к внешним поверхностям горловин резервуаров (рисунок 1) и в паспорт типографским способом.
Резервуары горизонтальные ЕП-63-3000-1200-А-С0-У1 с заводским номером 111.11.23 и заводским номером 112.11.23 расположены в Ростовской области на территории НПС «Тарасовская» Тихорецкого РУМН АО «Черномортранснефть».
Эскиз общего вида резервуаров приведен на рисунке 2. Фотография общего вида резервуаров с измерительными люками и горловинами приведены на рисунке 3.
Знак поверки наносится в градуировочной таблице резервуара в месте подписи поверителя.
Пломбирование резервуаров горизонтальных ЕП-63-3000-1200-А-С0-У1
не предусмотрено.
Зав. № 111.11.23
Зав. № 112.11.23
Рисунок 1 - Маркировочные таблички резервуаров
Рисунок 2 - Эскиз общего вида резервуаров
Зав. № 111.11.23 Зав. № 112.11.23
Рисунок 3 - Общий вид резервуаров с измерительными люками и горловинами
Технические характеристики
Таблица 1 - Метрологические характеристики
|
Наименование характеристики |
Значение |
|
Номинальная вместимость, м3 |
63 |
|
Пределы допускаемой относительной погрешности определения вместимости (объемный метод), % |
±0,25 |
Таблица 2 - Основные технические характеристики
|
Наименование характеристики |
Значение |
|
Условия эксплуатации: - рабочая температура, °С |
от -36 до +29,6 |
Таблица 3 - Показатели надежности
|
Наименование характеристики |
Значение |
|
Средний срок службы, лет, не менее |
30 |
Знак утверждения типа
наносится на титульный лист паспорта резервуара типографским способом.
Комплектность
Таблица 4 - Комплектность средства измерений
|
Наименование |
Обозначение |
Количество |
|
Резервуар горизонтальный |
ЕП-63-3000-1200-А-С0-У1 |
1 шт. |
|
Паспорт |
- |
1 экз. |
|
Градуировочная таблица |
- |
1 экз. |
Сведения о методах измерений
приведены в пункте 2 паспорта.
Нормативные документы
Приказ Федерального агентства по техническому регулированию и метрологии от 26 сентября 2022 г. № 2356 «Об утверждении Государственной поверочной схемы для средств измерений массы и объема жидкости в потоке, объема жидкости и вместимости при статических измерениях, массового и объемного расходов жидкости»


