Оборудование "ООО "ТехМонтажСпецСтрой", г.Пятигорск" в Госреестре РФ
ООО "ТехМонтажСпецСтрой", г.Пятигорск

Оборудование в госреестре ООО "ТехМонтажСпецСтрой", г.Пятигорск

96153-25
РГСД-25 Резервуар горизонтальный стальной двустенный
ООО "Техмонтажспецстрой", РОССИЯ, 357500, Ставропольский край, г. Пятигорск, ул. Орджоникидзе, д. 11 к. 2
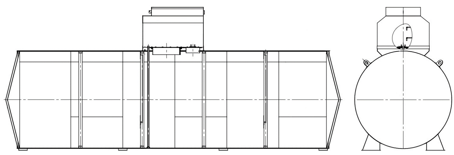
Резервуар горизонтальный стальной двустенный РГСД-25 (далее - резервуар) предназначен для измерений объема нефти и нефтепродуктов, а также для их приема, хранения и отпуска.
96141-25
РГСД-25 Резервуары горизонтальные стальные двустенные
ООО «Техмонтажспецстрой», РОССИЯ, 357500, Ставропольский край, г. Пятигорск, ул. Орджоникидзе, д.11, к.2
Резервуары горизонтальные стальные двустенные РГСД-25 (далее - резервуары) предназначены для измерений объема нефти и нефтепродуктов, а также для их приема, хранения и отпуска.
96140-25
РГСД-25 Резервуары горизонтальные стальные двустенные
ООО «Техмонтажспецстрой», РОССИЯ, 357500, Ставропольский край, г. Пятигорск, ул. Орджоникидзе, д.11, к.2
Резервуары горизонтальные стальные двустенные РГСД-25 (далее - резервуары) предназначены для измерений объема нефти и нефтепродуктов, а также для их приема, хранения и отпуска.
93574-24
РГСД-25 Резервуары горизонтальные стальные двустенные
Общество с ограниченной ответственностью "Техмонтажспецстрой" (ООО "Техмонтажспецстрой"), Ставропольский край, г. Пятигорск
Резервуары горизонтальные стальные двустенные РГСД-25 (далее - резервуары) предназначены для измерений объема нефти и нефтепродуктов, а также для их приема, хранения и отпуска.
90407-23
РГСД-25 Резервуары горизонтальные стальные двустенные
Общество с ограниченной ответственностью "Техмонтажспецстрой" (ООО "Техмонтажспецстрой"), Ставропольский край, г. Пятигорск
Резервуары горизонтальные стальные двустенные РГСД-25 (далее - резервуары) предназначены для измерения объема нефти и нефтепродуктов, а также для их приема, хранения и отпуска.
90406-23
РГСД-25 Резервуары горизонтальные стальные двустенные
Общество с ограниченной ответственностью "Техмонтажспецстрой" (ООО "Техмонтажспецстрой"), Ставропольский край, г. Пятигорск
Резервуары горизонтальные стальные двустенные РГСД-25 (далее - резервуары) предназначены для измерения объема нефти и нефтепродуктов, а также для их приема, хранения и отпуска.
90405-23
РГСД-25 Резервуары горизонтальные стальные двустенные
Общество с ограниченной ответственностью "Техмонтажспецстрой" (ООО "Техмонтажспецстрой"), Ставропольский край, г. Пятигорск
Резервуары горизонтальные стальные двустенные РГСД-25 (далее - резервуары) предназначены для измерения объема нефти и нефтепродуктов, а также для их приема, хранения и отпуска.
90404-23
РГСД-25 Резервуары горизонтальные стальные двустенные
Общество с ограниченной ответственностью "Техмонтажспецстрой" (ООО "Техмонтажспецстрой"), Ставропольский край, г. Пятигорск
Резервуары горизонтальные стальные двустенные РГСД-25 (далее - резервуары) предназначены для измерения объема нефти и нефтепродуктов, а также для их приема, хранения и отпуска.
90353-23
РГСД-25 Резервуары горизонтальные стальные двустенные
Общество с ограниченной ответственностью "Техмонтажспецстрой" (ООО "Техмонтажспецстрой"), Ставропольский край, г. Пятигорск
Резервуары горизонтальные стальные двустенные РГСД-25 (далее - резервуары) предназначены для измерения объема нефти и нефтепродуктов, а также для их приема, хранения и отпуска.
90352-23
РГСД-25 Резервуары горизонтальные стальные двустенные
Общество с ограниченной ответственностью "Техмонтажспецстрой" (ООО "Техмонтажспецстрой"), Ставропольский край, г. Пятигорск
Резервуары горизонтальные стальные двустенные РГСД-25 (далее - резервуары) предназначены для измерения объема нефти и нефтепродуктов, а также для их приема, хранения и отпуска.