Меры толщины бетонные PT 1000, Detection block
| Номер в ГРСИ РФ: | 53817-13 |
|---|---|
| Производитель / заявитель: | Фирма "HILTI Corporation", Швейцария |
Информация по Госреестру
| Основные данные | |
|---|---|
| Номер по Госреестру | 53817-13 |
| Действует | по 18.06.2018 |
| Наименование | Меры толщины бетонные |
| Модель | PT 1000, Detection block |
| Характер производства | Серийное |
| Идентификатор записи ФИФ ОЕИ | 231d1959-f4cc-36ec-25ee-985933c68602 |
| Год регистрации | 2013 |
| Общие данные | |
|---|---|
| Класс СИ | 27.01 |
| Год регистрации | 2013 |
| Страна-производитель | Лихтенштейн |
| Информация о сертификате | |
| Срок действия сертификата | 18.06.2018 |
| Тип сертификата (C - серия/E - партия) | C |
| Дата протокола | Приказ 598 п. 13 от 18.06.2013 |
Производитель / Заявитель
Фирма "Hilti Corporation", ЛИХТЕНШТЕЙН
Лихтенштейн
Поверка
| Методика поверки / информация о поверке | МП РТ 1856-2013 |
| Межповерочный интервал / Периодичность поверки |
1 год
|
| Зарегистрировано поверок | |
| Найдено поверителей | |
| Успешных поверок (СИ пригодно) | 2 (100%) |
| Неуспешных поверок (СИ непригодно) | 0 (0 %) |
| Актуальность информации | 22.03.2026 |
Поверители
Скачать
|
53817-13: Описание типа
2013-53817-13.pdf
|
Скачать | 110.3 КБ | |
| Свидетельство об утверждении типа СИ | Открыть | ... |
Описание типа
Назначение
Меры толщины бетонные PT 1000, Detection block предназначены для поверки, проведения калибровки и настройки радиочастотных и электромагнитных измерителей глубины залегания арматуры, ультразвуковых тестеров и измерителей и других средств измерений, применяемых в неразрушающем контроле материалов и изделий.
Описание
Принцип действия мер толщины бетонных PT 1000, Detection block основан на воспроизведении заданных геометрических размеров мер и координат искусственных дефектов. Искусственные дефекты выполнены в виде сквозных отверстий в теле меры или жестко закрепленной в мере металлической арматуры.
Конструктивно каждая мера представляет собой прямоугольный параллелепипед, с отверстиями, в которые вставлена и жестко закреплена или может свободно вставляться арматура, выполненная в виде металлических стержней, пластиковых труб или электрических проводов.
Меры толщины бетонные PT 1000 - имеет слоистую структуру (шесть бетонных плит), мера толщины бетонная Detection block - выполнена из одного слоя бетона (одна бетонная плита).
Внешний вид мер представлен на Рисунке 1.
Detection block

PT 1000
Рисунок 1. Внешний вид мер толщины бетонных PT 1000, Detection block
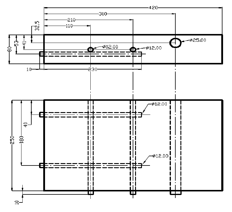
Чертежи с геометрическими размерами и расположением искусственных дефектов в мерах бетонных PT 1000, Detection block приведены на Рисунке 2.
Detection block
PT 1000
Рисунок 2. Чертежи мер толщины бетонных PT 1000, Detection block
Технические характеристики
|
Наименование характеристики / тип меры |
PT 1000 |
Detection block | ||||
|
Количество слоев |
6 |
1 | ||||
|
Толщина слоя, мм |
80 |
80 | ||||
|
Толщина меры, мм |
480 |
80 | ||||
|
Пределы допустимого отклонения номинального значения толщины меры, мм |
±1,0 | |||||
|
Наименование искусственных дефектов меры Геометрические размеры и координаты искусственных дефектов меры, мм |
Сквозное отверстие 1 |
Отверстие с запресс металлическим сте |
ованным ржнем 1 | |||
|
Диаметр |
Глубина залегания |
Расстояние до левой стенки |
Диаметр |
Глубина залегания |
Расстояние до левой стенки | |
|
25,0 |
58,0 |
200,0 |
12,0 |
41,0 |
110,0 | |
|
Сквозное отверстие 2 |
Отверстие с запресс металлическим сте |
ованным ржнем 2 | ||||
|
Диаметр |
Глубина залегания |
Расстояние до левой стенки |
Диаметр |
Глубина залегания |
Расстояние до левой стенки | |
|
25,0 |
22,0 |
300,0 |
12,0 |
41,0 |
210,0 | |
|
Сквозное отверстие 3 |
Отверстие с запресс металлическим сте |
ованным ржнем 3 | ||||
|
Диаметр |
Глубина залегания |
Расстояние до левой стенки |
Диаметр |
Глубина залегания |
Расстояние до левой стенки | |
|
25,0 |
130,0 |
400,0 |
12,0 |
53,0 |
40,0 | |
|
Сквозное отверстие 4 |
Отверстие с запресс металлическим сте |
ованным ржнем 4 | ||||
|
Диаметр |
Глубина залегания |
Расстояние до левой стенки |
Диаметр |
Глубина залегания |
Расстояние до левой стенки | |
|
25,0 |
100,0 |
500,0 |
12,0 |
53,0 |
180,0 | |
|
Отверстие с пластмассовой вставкой | ||||||
|
Диаметр |
Глубина залегания |
Расстояние до левой стенки | ||||
|
25,0 |
32,5 |
310,0 | ||||
|
Наименование характеристики / тип меры |
PT 1000 |
Detection block |
|
Пределы допускаемой абсолютной погрешности размеров и координат дефектов меры, мм - по глубине залегания по ширине меры |
±1,0 ±3,0 | |
|
Номинальное значение скорости распространения продольной ультразвуковой волны, м/с |
3990 | |
|
Пределы допускаемой абсолютной погрешности скорости распространения продольной ультразвуковой волны, м/с |
±20 |
±20 |
|
Номинальное значение скорости распространения поперечной ультразвуковой волны, м/с |
2390 | |
|
Пределы допускаемой абсолютной погрешности скорости распространения поперечной ультразвуковой волны, м/с |
±20 |
±20 |
|
Габаритные размеры, мм |
1000x500x480 |
420x250x80 |
|
Масса, кг |
528 |
17,4 |
Знак утверждения типа
наносится на ящики для упаковки, транспортирования и хранения, а также титульные листы эксплуатационных документов типографским способом.
Комплектность
Комплектность мер толщины бетонных PT 1000:
|
Наименование |
Количество, шт. |
|
Мера толщины бетонная PT 1000 |
1 |
|
Стержни арматуры металлические для меры толщины бетонной PT 1000, диаметрами 6, 8, 12 и 16 мм |
4 |
|
Медная труба 0 12 мм |
1 |
|
Пластиковая труба 0 25 мм |
1 |
|
Провод электрический в пластиковой оплетке |
1 |
|
Руководство по эксплуатации |
1 |
|
Методика поверки |
1 |
Комплектность мер толщины бетонных Detection block:
|
Наименование |
Количество, шт. |
|
Мера толщины бетонная Detection block |
1 |
|
Транспортный чемодан |
1 |
|
Руководство по эксплуатации |
1 |
|
Методика поверки |
1 |
Поверка
осуществляется по документу МПРТ 1856 -2013 «Меры толщины бетонные PT 1000, Detection block Методика поверки», утвержденному ГЦИ СИ ФБУ «Ростест - Москва» в феврале 2013 г.
Основные средства поверки:
- штангенрейсмас ШР-630 ГОСТ 164-90, (60 ^630) мм, пределы допускаемой погрешности ±0,1 мм;
- штангенциркуль ШЦ-1000 ГОСТ 164-90, (0 ^1000) мм, пределы допускаемой погрешности ±0,1 мм;
- штангенциркуль ТТТЦ-II ГОСТ 164-90, (0 ^150) мм, пределы допускаемой погрешности ±0,05 мм;
- плита поверочная, ГОСТ 10905-86, (1600x1000) мм, кл. 3;
- тестер ультразвуковой UK1401: (25^100) мкс, погрешность ±(0,02-t+0,1), где t - измеренное значение времени; (1500^6000) м/с, погрешность ±(0,02-с+0,1), где с - измеренное значение скорости, м/с;
- тестер ультразвуковой UK1401S: (45^200) мкс, погрешность ±(0,02-t+0,1), где t- измеренное значение времени; (750^3250) м/с, погрешность ±(0,02-с+0,1), где с - измеренное значение скорости, м/с.
Сведения о методах измерений
Сведения о методиках (методах) измерений отсутствуют.
Нормативные документы
1. МИ 2060-90. ГСИ. Государственная поверочная схема для средств измерений длины в диапазоне (1 x 10-6^50) м и длин волн в диапазоне (0,2 ^ 50) мкм
2. Техническая документация фирмы «HILTI Corporation» Лихтенштейн.
Рекомендации к применению
Выполнение работ и оказание услуг по обеспечению единства измерений.
Смотрите также53818-13
EFT M1 GNSS
Аппаратура геодезическая спутниковая
Фирма "HI-Target Surveying Instrument Co. Limited", КИТАЙ
53819-13
ЭКПН
Компаратор эталонный для поверки нивелиров
Иркутский авиационный завод - филиал ОАО "Научно-производственная корпорация "Иркут", РОССИЯ, г.Иркутск
53821-13
КАСКАД-1-МТ
Счетчики электрической энергии однофазные многофункциональные
ОАО "КАСКАД", РОССИЯ, г.Черкесск
|


