Резервуары стальные горизонтальные цилиндрические РГС
| Номер в ГРСИ РФ: | 96102-25 |
|---|---|
| Категория: | Резервуары |
| Производитель / заявитель: | ООО "ТАИФ-НК АЗС", г. Казань |
|
96102-25: Описание типа
2025-96102-25-1.pdf
|
Скачать | 256.4 КБ |
Резервуары стальные горизонтальные цилиндрические РГС (далее - резервуары) предназначены для измерений объема нефтепродуктов, а также для их приема, хранения и отпуска.
Информация по Госреестру
| Основные данные | ||||||||||||||||||||||
|---|---|---|---|---|---|---|---|---|---|---|---|---|---|---|---|---|---|---|---|---|---|---|
| Номер по Госреестру | 96102-25 | |||||||||||||||||||||
| Наименование | Резервуары стальные горизонтальные цилиндрические | |||||||||||||||||||||
| Модель | РГС | |||||||||||||||||||||
| Модификации |
РГС-15 РГС-25 РГС-35 |
|||||||||||||||||||||
| Приказы |
№1634 от
11.08.2025
— Об утверждении типов средств измерений
|
|||||||||||||||||||||
| Код идентификации производства |
ОС
СИ не соответствует критериям подтверждения производства на территории
РФ в соответствии с постановлением №719
|
|||||||||||||||||||||
| Характер производства | Единичное | |||||||||||||||||||||
| Идентификатор записи ФИФ ОЕИ | b4d9d8a6-2baa-8c46-adb7-7d8c98b3745d | |||||||||||||||||||||
| Испытания |
|
|||||||||||||||||||||
Производитель / Заявитель
ООО «ТАИФ-НК АЗС», РОССИЯ, 420097, Респ. Татарстан (Татарстан), г.о. г. Казань, г. Казань, ул. Зинина, д. 10, офис 507
Поверка
| Методика поверки / информация о поверке |
ГОСТ 8.346-2000 Государственная система обеспечения единства измерений. Резервуары стальные горизонтальные цилиндрические. Методика поверки
(с 11.08.2025)
|
| Межповерочный интервал / Периодичность поверки |
5 лет
|
| Зарегистрировано поверок | |
| Найдено поверителей | |
| Успешных поверок (СИ пригодно) | 6 (100%) |
| Неуспешных поверок (СИ непригодно) | 0 (0 %) |
| Актуальность информации | 29.03.2026 |
Поверители
Скачать
|
96102-25: Описание типа
2025-96102-25.pdf
Файл устарел
|
Скачать | 256.4 КБ | |
|
96102-25: Описание типа
2025-96102-25-1.pdf
|
Скачать | 256.4 КБ |
Описание типа
Назначение
Резервуары стальные горизонтальные цилиндрические РГС (далее - резервуары) предназначены для измерений объема нефтепродуктов, а также для их приема, хранения и отпуска.
Описание
Принцип действия резервуаров основан на заполнении их нефтепродуктом до определенного уровня, соответствующего заданному значению объема.
Резервуары представляют собой горизонтально расположенный цилиндрический стальной сосуд с днищами.
Заполнение и выдача продукта осуществляется через приемно-раздаточные патрубки.
Установка резервуаров РГС - подземная.
Резервуары изготовлены в следующих модификациях: РГС-15 с заводским номером 1, РГС-25 с заводскими номерами 3, 4, 5, 6, РГС-35 с заводским номером 2.
Заводские номера резервуаров в виде цифрового обозначения, состоящие из арабских цифр, нанесены типографским способом на табличку резервуара. Табличка крепится к люку резервуара.
Резервуары РГС-15 с заводским номером 1, РГС-25 с заводскими номерами 3, 4, 5, 6, РГС-35 с заводским номером 2 расположены на территории АЗС №160, ООО «ТАИФ-НК АЗС» по адресу: 420127, Республика Татарстан, г. Казань, ул. Михаила Миля, 57.
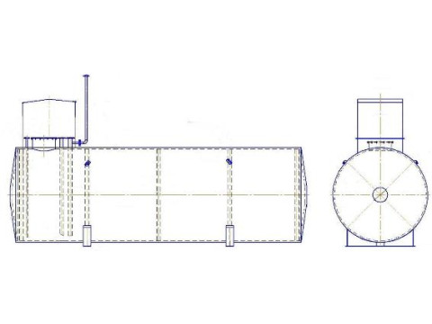
Эскиз общего вида резервуаров приведен на рисунке 1. Фотографии горловин приведены на рисунках 2, 3, 4, 5.
Нанесение знака поверки на средство измерений не предусмотрено.
Рисунок 1 - Эскиз общего вида резервуаров РГС
Рисунок 2 - Горловина резервуара РГС-15 зав.№ 1
Рисунок 3 - Горловины резервуаров РГС-25 зав.№№ 3, 4
Рисунок 4 - Горловины резервуаров РГС-25 зав.№№ 5, 6
Рисунок 5 - Горловина резервуара РГС-35 зав.№ 2
Пломбирование резервуаров РГС не предусмотрено.
Технические характеристики
Таблица 1 - Метрологические характеристики
|
Наименование характеристики |
Значение | ||
|
РГС-15 |
РГС-25 |
РГС-35 | |
|
Номинальная вместимость, м3 |
15 |
25 |
35 |
|
Пределы допускаемой относительной погрешности определения вместимости (объемный метод), % |
±0,25 | ||
Таблица 2 - Технические характеристики
|
Наименование характеристики |
Значение |
|
Условия эксплуатации: Температура окружающего воздуха, оС Атмосферное давление, кПа |
от -50 до +50 от 84,0 до 106,7 |
Таблица 3 - Показатели надежности
|
Наименование характеристики |
Значение |
|
Средний срок службы, лет, не менее |
20 |
Знак утверждения типа
наносится на титульный лист паспорта резервуара типографским способом.
Комплектность
Таблица 4 - Комплектность средства измерений
|
Наименование |
Обозначение |
Количество |
|
Резервуар стальной горизонтальный цилиндрический |
РГС-15 |
1 шт. |
|
Паспорт |
- |
1 экз. |
|
Градуировочная таблица |
- |
1 экз. |
|
Резервуар стальной горизонтальный цилиндрический |
РГС-25 |
1 шт. |
|
Паспорт |
- |
1 экз. |
|
Градуировочная таблица |
- |
1 экз. |
|
Резервуар стальной горизонтальный цилиндрический |
РГС-35 |
1 шт. |
|
Паспорт |
- |
1 экз. |
|
Градуировочная таблица |
- |
1 экз. |
Сведения о методах измерений
приведены в пункте 8 паспорта на резервуар.
Нормативные документы
Приказ Росстандарта от 26 сентября 2022 г. № 2356 «Об утверждении Государственной поверочной схемы для средств измерений массы и объема жидкости в потоке, объема жидкости и вместимости при статических измерениях, массового и объемного расходов жидкости».




