Резервуар горизонтальный стальной цилиндрический РГП 25-1-1-О-У
| Номер в ГРСИ РФ: | 96152-25 |
|---|---|
| Категория: | Резервуары |
| Производитель / заявитель: | ООО "Углерод", Ростовская обл. |
|
96152-25: Описание типа
2025-96152-25-1.pdf
|
Скачать | 205.5 КБ |
Резервуар горизонтальный стальной цилиндрический РГП 25-1-1-О-У (далее - резервуар) предназначен для измерений объема нефти и нефтепродуктов, а также для
Информация по Госреестру
| Основные данные | |||||||
|---|---|---|---|---|---|---|---|
| Номер по Госреестру | 96152-25 | ||||||
| Наименование | Резервуар горизонтальный стальной цилиндрический | ||||||
| Модель | РГП 25-1-1-О-У | ||||||
| Приказы |
№1685 от
14.08.2025
— Об утверждении типов средств измерений
|
||||||
| Код идентификации производства |
ОС
СИ не соответствует критериям подтверждения производства на территории
РФ в соответствии с постановлением №719
|
||||||
| Характер производства | Единичное | ||||||
| Идентификатор записи ФИФ ОЕИ | ab020241-5143-a346-faad-42c622599944 | ||||||
| Испытания |
|
||||||
Производитель / Заявитель
ООО "Углерод", РОССИЯ, 347830, Ростовская обл., Каменский р-н, хутор Старая Станица, ул. Железнодорожная, д.1
Поверка
| Методика поверки / информация о поверке |
ГОСТ 8.346-2000 Государственная система обеспечения единства измерений. Резервуары стальные горизонтальные цилиндрические. Методика поверки
(с 14.08.2025)
|
| Межповерочный интервал / Периодичность поверки |
5 лет
|
| Зарегистрировано поверок | |
| Найдено поверителей | |
| Успешных поверок (СИ пригодно) | 1 (100%) |
| Неуспешных поверок (СИ непригодно) | 0 (0 %) |
| Актуальность информации | 29.03.2026 |
Поверители
Скачать
|
96152-25: Описание типа
2025-96152-25.pdf
Файл устарел
|
Скачать | 205.5 КБ | |
|
96152-25: Описание типа
2025-96152-25-1.pdf
|
Скачать | 205.5 КБ |
Описание типа
Назначение
Резервуар горизонтальный стальной цилиндрический РГП 25-1-1-О-У (далее - резервуар) предназначен для измерений объема нефти и нефтепродуктов, а также для их приема, хранения и отпуска.
Описание
Тип резервуара - горизонтальный стальной цилиндрический, номинальной вместимостью 25 м3 подземного расположения.
Принцип действия резервуара основан на заполнении его нефтью или нефтепродуктом до определенного уровня, соответствующего заданному значению объема.
Резервуар представляет собой горизонтально расположенный цилиндрический стальной сосуд с днищами.
Заполнение и выдача продукта осуществляется через приемно-раздаточные патрубки.
Заводской номер резервуара в виде цифрового обозначения, состоящий из арабских цифр, нанесен ударным способом на маркировочную табличку резервуара. Маркировочная табличка крепится к корпусу резервуара.
Резервуар РГП 25-1-1-О-У с заводским номером 0220 расположен по адресу: Республика Южная Осетия, нп Орчосан.
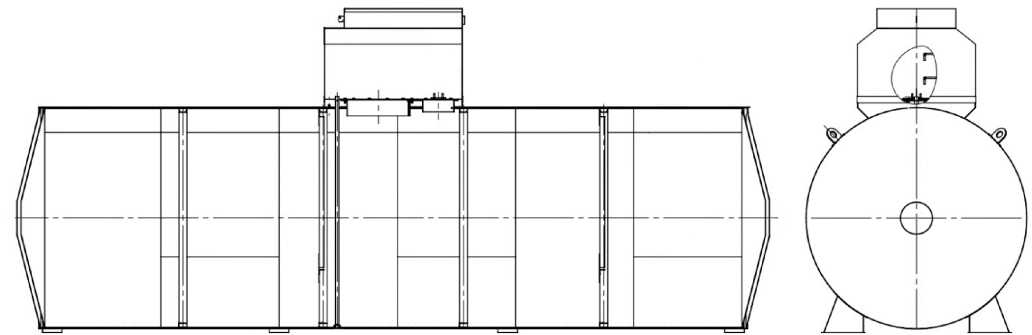
Эскиз общего вида резервуара приведен на рисунке 1. Фотография горловины и измерительного люка приведена на рисунке 2.
Нанесение знака поверки на средство измерений не предусмотрено.
Рисунок 1 - Эскиз общего вида резервуара
Рисунок 2 - Горловина и измерительный люк резервуара РГП 25-1-1-О-У зав.№ 0220
Пломбирование резервуара РГП 25-1-1-О-У не предусмотрено.
Технические характеристики
Таблица 1 - Метрологические характеристики
|
Наименование характеристики |
Значение |
|
Номинальная вместимость, м3 |
25 |
|
Пределы допускаемой относительной погрешности определения вместимости (объемный метод), % |
±0,25 |
Таблица 2 - Технические характеристики
|
Наименование характеристики |
Значение |
|
Условия эксплуатации: Температура окружающего воздуха, оС Атмосферное давление, кПа |
от -50 до +50 от 84,0 до 106,7 |
Таблица 3 - Показатели надежности
|
Наименование характеристики |
Значение |
|
Средний срок службы, лет, не менее |
10 |
Знак утверждения типа
наносится на титульный лист паспорта резервуара типографским способом.
Комплектность
Таблица 4 - Комплектность средства измерений
|
Наименование |
Обозначение |
Количество |
|
Резервуар горизонтальный стальной цилиндрический |
РГП 25-1-1-О-У |
1 шт. |
|
Паспорт |
- |
1 экз. |
|
Градуировочная таблица |
- |
1 экз. |
Сведения о методах измерений
приведены в пункте 8 паспорта на резервуар.
Нормативные документы
Приказ Росстандарта от 26 сентября 2022 г. № 2356 «Об утверждении Государственной поверочной схемы для средств измерений массы и объема жидкости в потоке, объема жидкости и вместимости при статических измерениях, массового и объемного расходов жидкости».
