Резервуары горизонтальные стальные цилиндрические РГП 25-1-2(0,85)-О-У
| Номер в ГРСИ РФ: | 96171-25 |
|---|---|
| Категория: | Резервуары |
| Производитель / заявитель: | ООО "Углерод", Ростовская обл. |
|
96171-25: Описание типа
2025-96171-25-1.pdf
|
Скачать | 442.1 КБ |
Резервуары горизонтальные стальные цилиндрические РГП 25-1-2(0,85)-О-У (далее - резервуары) предназначены для измерений объема нефти и нефтепродуктов, а также для их приема, хранения и отпуска.
Информация по Госреестру
| Основные данные | |||||||||||||||||||||||||
|---|---|---|---|---|---|---|---|---|---|---|---|---|---|---|---|---|---|---|---|---|---|---|---|---|---|
| Номер по Госреестру | 96171-25 | ||||||||||||||||||||||||
| Наименование | Резервуары горизонтальные стальные цилиндрические | ||||||||||||||||||||||||
| Модель | РГП 25-1-2(0,85)-О-У | ||||||||||||||||||||||||
| Приказы |
№1699 от
15.08.2025
— Об утверждении типов средств измерений
|
||||||||||||||||||||||||
| Код идентификации производства |
ОС
СИ не соответствует критериям подтверждения производства на территории
РФ в соответствии с постановлением №719
|
||||||||||||||||||||||||
| Характер производства | Единичное | ||||||||||||||||||||||||
| Идентификатор записи ФИФ ОЕИ | a5e2461e-eeac-a071-6292-3e314ff5201d | ||||||||||||||||||||||||
| Испытания |
|
||||||||||||||||||||||||
Производитель / Заявитель
ООО "Углерод", РОССИЯ, 347830, Ростовская обл., Каменский р-н, хутор Старая Станица, ул. Железнодорожная, д.1
Поверка
| Методика поверки / информация о поверке |
ГОСТ 8.346-2000 Государственная система обеспечения единства измерений. Резервуары стальные горизонтальные цилиндрические. Методика поверки
(с 15.08.2025)
|
| Межповерочный интервал / Периодичность поверки |
5 лет
|
| Зарегистрировано поверок | |
| Найдено поверителей | |
| Успешных поверок (СИ пригодно) | 7 (100%) |
| Неуспешных поверок (СИ непригодно) | 0 (0 %) |
| Актуальность информации | 29.03.2026 |
Поверители
Скачать
|
96171-25: Описание типа
2025-96171-25.pdf
Файл устарел
|
Скачать | 442.1 КБ | |
|
96171-25: Описание типа
2025-96171-25-1.pdf
|
Скачать | 442.1 КБ |
Описание типа
Назначение
Резервуары горизонтальные стальные цилиндрические РГП 25-1-2(0,85)-О-У (далее - резервуары) предназначены для измерений объема нефти и нефтепродуктов, а также для их приема, хранения и отпуска.
Описание
Тип резервуаров - горизонтальные стальные цилиндрические, номинальной вместимостью 25 м3 подземного расположения.
Принцип действия резервуаров основан на заполнении их нефтью или нефтепродуктом до определенного уровня, соответствующего заданному значению объема.
Резервуары представляют собой горизонтально расположенный цилиндрический стальной сосуд с днищами.
Заполнение и выдача продукта осуществляется через приемно-раздаточные патрубки.
Заводские номера резервуаров в виде цифрового обозначения, состоящие из арабских цифр, нанесены ударным способом на маркировочную табличку резервуара. Маркировочная табличка крепится к корпусу резервуара.
Резервуары РГП 25-1-2(0,85)-О-У с заводскими номерами 0201, 0204, 0207, 0208, 0209, 0222, 0224 расположены по адресу: Республика Южная Осетия, нп Орчосан.
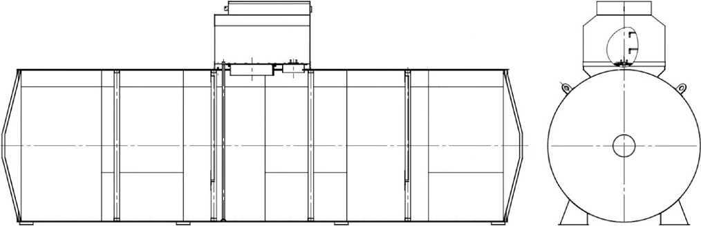
Эскиз общего вида резервуаров приведен на рисунке 1. Фотографии горловин и измерительных люков приведены на рисунках 2, 3, 4, 5, 6, 7, 8.
Нанесение знака поверки на средство измерений не предусмотрено.
Рисунок 1 - Эскиз общего вида резервуаров
Место нанесения заводского номера
Рисунок 2 - Горловина и измерительный люк резервуара РГП 25-1-2(0,85)-О-У зав.№ 0201
Рисунок 3 - Горловина и измерительный люк резервуара РГП 25-1-2(0,85)-О-У зав.№ 0204
Место нанесения заводского номера
Рисунок 4 - Горловина и измерительный люк резервуара РГП 25-1-2(0,85)-О-У зав.№ 0207
Рисунок 5 - Горловина и измерительный люк резервуара РГП 25-1-2(0,85)-О-У зав.№ 0208
Рисунок 6 - Горловина и измерительный люк резервуара РГП 25-1-2(0,85)-О-У зав.№ 0209
Место нанесения заводского номера
Рисунок 7 - Горловина и измерительный люк резервуара РГП 25-1-2(0,85)-О-У зав.№ 0222
Рисунок 8 - Горловина и измерительный люк резервуара РГП 25-1-2(0,85)-О-У зав.№ 0224
Пломбирование резервуаров РГП 25-1-2(0,85)-О-У не предусмотрено.
Технические характеристики
Таблица 1 - Метрологические характеристики
|
Наименование характеристики |
Значение |
|
Номинальная вместимость, м3 |
25 |
|
Пределы допускаемой относительной погрешности определения вместимости (объемный метод), % |
±0,25 |
Таблица 2 - Технические характеристики
|
Наименование характеристики |
Значение |
|
Условия эксплуатации: Температура окружающего воздуха, оС Атмосферное давление, кПа |
от -50 до +50 от 84,0 до 106,7 |
Таблица 3 - Показатели надежности
|
Наименование характеристики |
Значение |
|
Средний срок службы, лет, не менее |
10 |
Знак утверждения типа
наносится на титульный лист паспорта резервуара типографским способом.
Комплектность
Таблица 4 - Комплектность средства измерений
|
Наименование |
Обозначение |
Количество |
|
Резервуар горизонтальный стальной цилиндрический |
РГП 25-1-2(0,85)-О-У |
1 шт. |
|
Паспорт |
- |
1 экз. |
|
Градуировочная таблица |
- |
1 экз. |
Сведения о методах измерений
приведены в пункте 8 паспорта на резервуар.
Нормативные документы
Приказ Росстандарта от 26 сентября 2022 г. № 2356 «Об утверждении Государственной поверочной схемы для средств измерений массы и объема жидкости в потоке, объема жидкости и вместимости при статических измерениях, массового и объемного расходов жидкости».






