Резервуар горизонтальный стальной цилиндрический РГС 10.5.2100.16406
| Номер в ГРСИ РФ: | 96965-25 |
|---|---|
| Категория: | Резервуары |
| Производитель / заявитель: | ООО «ЭЛЕМЕНТ», Московская область, г. Клин |
Резервуар горизонтальный стальной цилиндрический РГС 10.5.2100.16406 (далее -резервуар) предназначен для измерений объема нефтепродуктов, а также для их приема, хранения и отпуска.
Информация по Госреестру
| Основные данные | |||||||
|---|---|---|---|---|---|---|---|
| Номер по Госреестру | 96965-25 | ||||||
| Наименование | Резервуар горизонтальный стальной цилиндрический | ||||||
| Модель | РГС 10.5.2100.16406 | ||||||
| Приказы |
№2577 от
26.11.2025
— Об утверждении типов средств измерений
|
||||||
| Код идентификации производства |
ОС
СИ не соответствует критериям подтверждения производства на территории
РФ в соответствии с постановлением №719
|
||||||
| Характер производства | Единичное | ||||||
| Идентификатор записи ФИФ ОЕИ | 9ffc49e7-00e0-4ced-b5f8-71a17e2e2249 | ||||||
| Испытания |
|
||||||
Производитель / Заявитель
ООО «ЭЛЕМЕНТ», РОССИЯ, 141602, Московская область, г. Клин, ул. Терешковой, д. 48, стр. 2.
Поверка
| Методика поверки / информация о поверке |
МП 0101-2025 Государственная система обеспечения единства измерений. Резервуар горизонтальный стальной цилиндрический РГС 10.5.2100.16406. Методика поверки
(с 26.11.2025)
|
| Межповерочный интервал / Периодичность поверки |
5 лет
|
| Зарегистрировано поверок | |
| Найдено поверителей | |
| Успешных поверок (СИ пригодно) | 1 (100%) |
| Неуспешных поверок (СИ непригодно) | 0 (0 %) |
| Актуальность информации | 29.03.2026 |
Поверители
Скачать
|
96965-25: Описание типа
2025-96965-25.pdf
|
Скачать | 194.5 КБ | |
|
96965-25: Методика поверки
МП 0101-2025
2025-mp96965-25.pdf
|
Скачать | 214.8 КБ |
Описание типа
Назначение
Резервуар горизонтальный стальной цилиндрический РГС 10.5.2100.16406 (далее -резервуар) предназначен для измерений объема нефтепродуктов, а также для их приема, хранения и отпуска.
Описание
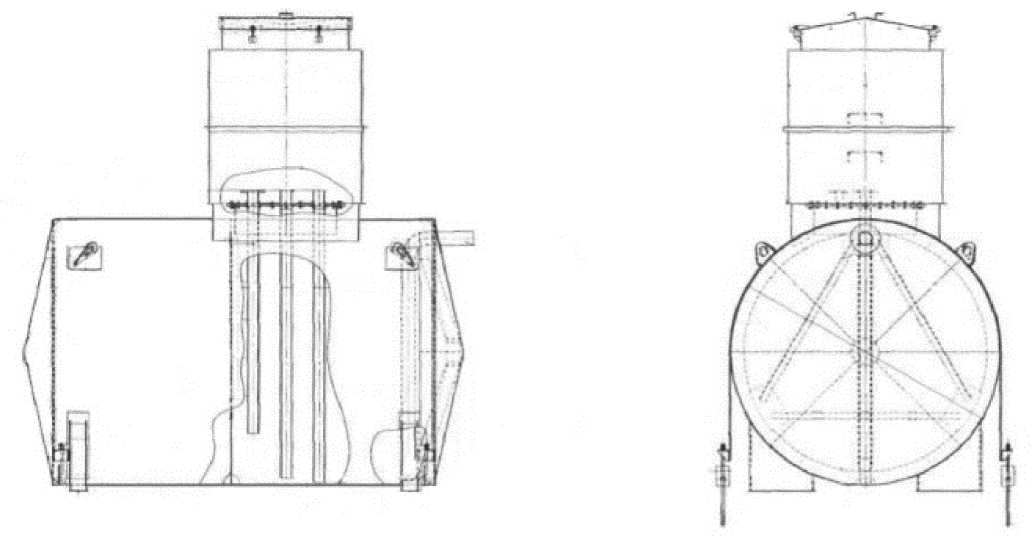
Тип резервуара - горизонтальный стальной цилиндрический, номинальной вместимостью 10 м3 подземного расположения.
Принцип действия резервуара основан на заполнении его нефтепродуктом до определенного уровня, соответствующего заданному значению объема.
Резервуар представляет собой горизонтально расположенный цилиндрический стальной сосуд с днищами.
Заполнение и выдача продукта осуществляется через приемно-раздаточные патрубки.
Заводской номер резервуара в виде цифрового обозначения, состоящий из арабских цифр, нанесен типографским способом на информационную табличку резервуара. Табличка крепится к люку резервуара.
Резервуар РГС 10.5.2100.16406 с заводским номером 31 расположен по адресу: Республики Саха (Якутия), г. Тикси, ул. Трусова, д. 22.
Эскиз общего вида резервуара приведен на рисунке 1. Фотография горловины приведена на рисунке 2.
Нанесение знака поверки на средство измерений не предусмотрено.
Рисунок 1 - Эскиз общего вида резервуара
Рисунок 2 - Горловина резервуара РГС 10.5.2100.16406 зав.№ 31
Пломбирование резервуара РГС 10.5.2100.16406 не предусмотрено.
Технические характеристики
Таблица 1 - Метрологические характеристики
|
Наименование характеристики |
Значение |
|
Номинальная вместимость, м3 |
10 |
|
Пределы допускаемой относительной погрешности определения вместимости, % |
±0,25 |
Таблица 2 - Технические характеристики
|
Наименование характеристики |
Значение |
|
Условия эксплуатации: Температура окружающего воздуха, оС Атмосферное давление, кПа |
от -40 до +40 от 84,0 до 106,7 |
Таблица 3 - Показатели надежности
|
Наименование характеристики |
Значение |
|
Средний срок службы, лет, не менее |
20 |
Знак утверждения типа
наносится на титульный лист паспорта резервуара типографским способом.
Комплектность
Таблица 4 - Комплектность средства измерений
|
Наименование |
Обозначение |
Количество |
|
Резервуар горизонтальный стальной цилиндрический |
РГС 10.5.2100.16406 |
1 шт. |
|
Паспорт |
- |
1 экз. |
|
Градуировочная таблица |
- |
1 экз. |
Сведения о методах измерений
приведены в пункте 8 паспорта на резервуар.
Нормативные документы
Приказ Росстандарта от 26 сентября 2022 г. № 2356 «Об утверждении Государственной поверочной схемы для средств измерений массы и объема жидкости в потоке, объема жидкости и вместимости при статических измерениях, массового и объемного расходов жидкости»
