Резервуары стальные горизонтальные цилиндрические РГС
| Номер в ГРСИ РФ: | 97524-26 |
|---|---|
| Категория: | Резервуары |
| Производитель / заявитель: | ООО "ТАИФ-НК АЗС", г. Казань |
|
97524-26: Описание типа
2026-97524-26-1.pdf
|
Скачать | 194.7 КБ |
Резервуары стальные горизонтальные цилиндрические РГС (далее - резервуары) предназначены для измерений объема нефтепродуктов, а также для их приема, хранения и отпуска.
Информация по Госреестру
| Основные данные | |||||||||||||||||||
|---|---|---|---|---|---|---|---|---|---|---|---|---|---|---|---|---|---|---|---|
| Номер по Госреестру | 97524-26 | ||||||||||||||||||
| Наименование | Резервуары стальные горизонтальные цилиндрические | ||||||||||||||||||
| Модель | РГС | ||||||||||||||||||
| Модификации |
РГС-12 РГС-13 РГС-25 |
||||||||||||||||||
| Приказы |
№126 от
27.01.2026
— Об утверждении типов средств измерений
|
||||||||||||||||||
| Код идентификации производства |
ОС
СИ не соответствует критериям подтверждения производства на территории
РФ в соответствии с постановлением №719
|
||||||||||||||||||
| Характер производства | Единичное | ||||||||||||||||||
| Идентификатор записи ФИФ ОЕИ | e56434b0-cfcc-5fc4-195e-e999e2be36ea | ||||||||||||||||||
| Испытания |
|
||||||||||||||||||
Производитель / Заявитель
ООО «ТАИФ-НК АЗС», РОССИЯ, 420097, Республика Татарстан (Татарстан), г.о. город Казань, г. Казань, ул. Зинина, д. 10, офис 507
Поверка
| Методика поверки / информация о поверке |
ГОСТ 8.346-2000 Государственная система обеспечения единства измерений. Резервуары стальные горизонтальные цилиндрические. Методика поверки
(с 27.01.2026)
|
| Межповерочный интервал / Периодичность поверки |
5 лет
|
| Зарегистрировано поверок | |
| Найдено поверителей | |
| Успешных поверок (СИ пригодно) | 11 (100%) |
| Неуспешных поверок (СИ непригодно) | 0 (0 %) |
| Актуальность информации | 24.05.2026 |
Поверители
Скачать
|
97524-26: Описание типа
2026-97524-26.pdf
Файл устарел
|
Скачать | 194.7 КБ | |
|
97524-26: Описание типа
2026-97524-26-1.pdf
|
Скачать | 194.7 КБ |
Описание типа
Назначение
Резервуары стальные горизонтальные цилиндрические РГС (далее - резервуары) предназначены для измерений объема нефтепродуктов, а также для их приема, хранения и отпуска.
Описание
Принцип действия резервуаров основан на заполнении их нефтепродуктом до определенного уровня, соответствующего заданному значению объема.
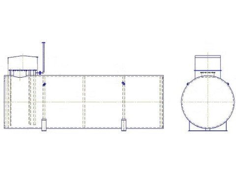
Резервуары представляют собой горизонтально расположенный цилиндрический стальной сосуд с днищами.
Заполнение и выдача продукта осуществляется через приемно-раздаточные патрубки.
Установка резервуаров РГС - подземная.
Резервуары изготовлены в следующих модификациях: РГС-12 с заводским номером 5, РГС-13 с заводским номером 1, РГС-25 с заводскими номерами 2, 3, 4.
Заводские номера резервуаров в виде цифрового обозначения, состоящие из арабских цифр, нанесены типографским способом на табличку резервуара. Табличка крепится к люку резервуару.
Резервуары РГС-12 с заводским номером 5, РГС-13 с заводским номером 1, РГС-25 с заводскими номерами 2, 3, 4 расположены на территории АЗС №307, ООО «ТАИФ-НК АЗС» по адресу: Республика Татарстан, м.р-н Верхнеуслонский, с.п. Макуловское, тер. Федеральной автомобильной дороги Р-241 Казань-Буинск-Ульяновск, 29-й километр, зд. 1.
Эскиз общего вида резервуаров приведен на рисунке 1. Фотографии горловин приведены на рисунках 2, 3, 4.
Нанесение знака поверки на средство измерений не предусмотрено.
Рисунок 1 - Эскиз общего вида резервуаров РГС
Рисунок 2 - Горловина резервуара РГС-12 зав.№ 5
Рисунок 3 - Горловина резервуара РГС-13 зав.№ 1
Рисунок 4 - Горловины резервуаров РГС-25 зав.№№ 2, 3, 4
Пломбирование резервуаров РГС не предусмотрено.
Технические характеристики
Таблица 1 - Метрологические характеристики
|
Наименование характеристики |
Значение | ||
|
РГС-12 |
РГС-13 |
РГС-25 | |
|
Номинальная вместимость, м3 |
12 |
13 |
25 |
|
Пределы допускаемой относительной погрешности определения вместимости (объемный метод), % |
±0,25 | ||
Таблица 2 - Технические характеристики
|
Наименование характеристики |
Значение |
|
Условия эксплуатации: Температура окружающего воздуха, оС Атмосферное давление, кПа |
от -50 до +50 от 84,0 до 106,7 |
Таблица 3 - Показатели надежности
|
Наименование характеристики |
Значение |
|
Средний срок службы, лет, не менее |
20 |
Знак утверждения типа
наносится на титульный лист паспорта резервуара типографским способом.
Комплектность
Таблица 4 - Комплектность средства измерений
|
Наименование |
Обозначение |
Количество |
|
Резервуар стальной горизонтальный цилиндрический |
РГС-12 |
1 шт. |
|
Паспорт |
- |
1 экз. |
|
Градуировочная таблица |
- |
1 экз. |
|
Резервуар стальной горизонтальный цилиндрический |
РГС-13 |
1 шт. |
|
Паспорт |
- |
1 экз. |
|
Градуировочная таблица |
- |
1 экз. |
|
Резервуар стальной горизонтальный цилиндрический |
РГС-25 |
1 шт. |
|
Паспорт |
- |
1 экз. |
|
Градуировочная таблица |
- |
1 экз. |
Сведения о методах измерений
приведены в пункте 8 паспорта на резервуар.
Нормативные документы
Приказ Росстандарта от 26 сентября 2022 г. № 2356 «Об утверждении Государственной поверочной схемы для средств измерений массы и объема жидкости в потоке, объема жидкости и вместимости при статических измерениях, массового и объемного расходов жидкости».



