Резервуары стальные горизонтальные цилиндрические РГС
| Номер в ГРСИ РФ: | 97717-26 |
|---|---|
| Категория: | Резервуары |
| Производитель / заявитель: | ООО "ТАИФ-НК АЗС", г. Казань |
|
97717-26: Описание типа
2026-97717-26.pdf
|
Скачать | 231.6 КБ |
Резервуары стальные горизонтальные цилиндрические РГС (далее - резервуары) предназначены для измерений объема нефтепродуктов, а также для их приема, хранения и отпуска.
Информация по Госреестру
| Основные данные | ||||||||||||||||
|---|---|---|---|---|---|---|---|---|---|---|---|---|---|---|---|---|
| Номер по Госреестру | 97717-26 | |||||||||||||||
| Наименование | Резервуары стальные горизонтальные цилиндрические | |||||||||||||||
| Модель | РГС | |||||||||||||||
| Модификации |
РГС-8 РГС-17 РГС-20 |
|||||||||||||||
| Приказы |
№255 от
13.02.2026
— Об утверждении типов средств измерений
|
|||||||||||||||
| Код идентификации производства |
ОС
СИ не соответствует критериям подтверждения производства на территории
РФ в соответствии с постановлением №719
|
|||||||||||||||
| Характер производства | Единичное | |||||||||||||||
| Идентификатор записи ФИФ ОЕИ | fc8f9ae3-c5c2-d050-cb0d-c8b45b58a03c | |||||||||||||||
| Испытания |
|
|||||||||||||||
Производитель / Заявитель
ООО «ТАИФ-НК АЗС», РОССИЯ, 420097, Республика Татарстан (Татарстан), г.о. город Казань, г. Казань, ул. Зинина, д. 10, офис 507
Поверка
| Методика поверки / информация о поверке |
ГОСТ 8.346-2000 Государственная система обеспечения единства измерений. Резервуары стальные горизонтальные цилиндрические. Методика поверки.
(с 13.02.2026)
|
| Межповерочный интервал / Периодичность поверки |
5 лет
|
| Зарегистрировано поверок | |
| Найдено поверителей | |
| Успешных поверок (СИ пригодно) | 4 (100%) |
| Неуспешных поверок (СИ непригодно) | 0 (0 %) |
| Актуальность информации | 29.03.2026 |
Поверители
Скачать
|
97717-26: Описание типа
2026-97717-26.pdf
|
Скачать | 231.6 КБ |
Описание типа
Назначение
Резервуары стальные горизонтальные цилиндрические РГС (далее - резервуары) предназначены для измерений объема нефтепродуктов, а также для их приема, хранения и отпуска.
Описание
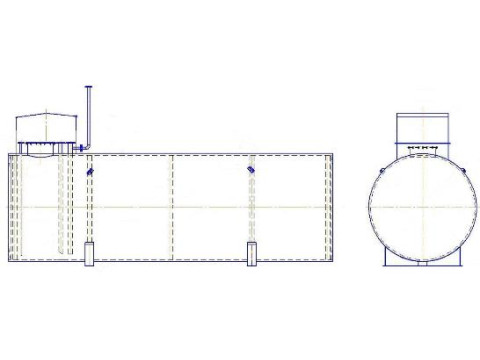
Принцип действия резервуаров основан на заполнении их нефтепродуктом до определенного уровня, соответствующего заданному значению объема.
Резервуары представляют собой горизонтально расположенный цилиндрический стальной сосуд с днищами.
Заполнение и выдача продукта осуществляется через приемно-раздаточные патрубки.
Установка резервуаров РГС - подземная.
Резервуары изготовлены в следующих модификациях: РГС-8 с заводскими номерами 3, 4, РГС-17 с заводским номером 1, РГС-20 с заводским номером 2.
Заводские номера резервуаров в виде цифрового обозначения, состоящие из арабских цифр, нанесены типографским способом на табличку резервуара. Табличка крепится к люку резервуару.
Резервуары РГС-8 с заводскими номерами 3, 4, РГС-17 с заводским номером 1, РГС-20 с заводским номером 2 расположены на территории АЗС № 702, ООО «ТАИФ-НК АЗС» по адресу: 422191, Республика Татарстан, м.р-н Мамадышский, г. Мамадыш, ул. Давыдова, здание 105Д.
Эскизы общего вида резервуаров приведены на рисунках 1, 2. Фотографии горловин приведены на рисунках 3, 4, 5.
Нанесение знака поверки на средство измерений не предусмотрено.
Рисунок 1 - Эскиз общего вида резервуара РГС-20
Рисунок 2 - Эскиз общего вида резервуаров РГС-8, РГС-17
Рисунок 3 - Горловины резервуаров РГС-8 зав.№№ 3, 4
Рисунок 4 - Горловина резервуара РГС-17 зав.№ 1
Рисунок 5 - Горловина резервуара РГС-20 зав.№ 2
Пломбирование резервуаров РГС не предусмотрено.
Технические характеристики
Таблица 1 - Метрологические характеристики
|
Наименование характеристики |
Значение | ||
|
РГС-8 |
РГС-17 |
РГС-20 | |
|
Номинальная вместимость, м3 |
8 |
17 |
20 |
|
Пределы допускаемой относительной погрешности определения вместимости (объемный метод), % |
±0,25 | ||
Таблица 2 - Технические характеристики
|
Наименование характеристики |
Значение |
|
Условия эксплуатации: Температура окружающего воздуха, оС Атмосферное давление, кПа |
от -50 до +50 от 84,0 до 106,7 |
Таблица 3 - Показатели надежности
|
Наименование характеристики |
Значение |
|
Средний срок службы, лет, не менее |
20 |
Знак утверждения типа
наносится на титульный лист паспорта резервуара типографским способом.
Комплектность
Таблица 4 - Комплектность средства измерений
|
Наименование |
Обозначение |
Количество |
|
Резервуар стальной горизонтальный цилиндрический |
РГС-8 |
1 шт. |
|
Паспорт |
- |
1 экз. |
|
Градуировочная таблица |
- |
1 экз. |
|
Резервуар стальной горизонтальный цилиндрический |
РГС-17 |
1 шт. |
|
Паспорт |
- |
1 экз. |
|
Градуировочная таблица |
- |
1 экз. |
|
Резервуар стальной горизонтальный цилиндрический |
РГС-20 |
1 шт. |
|
Паспорт |
- |
1 экз. |
|
Градуировочная таблица |
- |
1 экз. |
Сведения о методиках (методах) измерений приведены в пункте 8 паспорта на резервуар.
Нормативные документы
Приказ Росстандарта от 26 сентября 2022 г. № 2356 «Об утверждении Государственной поверочной схемы для средств измерений массы и объема жидкости в потоке, объема жидкости и вместимости при статических измерениях, массового и объемного расходов жидкости».




